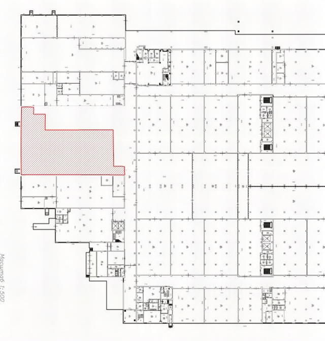
Сдается коммерческая, 1291.4 кв.м., 1/ эт
Арендная плата (Помесячно) | 2 324 538 |
---|---|
Цена кв.м. в год | 0 |
Тип здания | Другой |
Планировка avito | Кабинетная, Открытая |
Отделка помещения коммерческая | Чистовая |
Вход cian (avito) | Отдельный со двора |
Тип парковки | На улице |
Тип аренды | Прямая |
Залог | Есть |
Залог (avito) | 1 месяц |
Сумма залога, руб | 2324538 |
Тип Комиссия агента, %-руб | % |
Способ связи avito | По телефону и в сообщениях |
Торги | Нет |
Тип коммерческой | Складское помещение |
Площадь, кв.м. | 1291.4 |
Этаж | 1 |
Страна | Россия |
---|---|
Регион страны | Москва |
Район | Москва |
Населенный пункт | Москва |
Район города | Печатники |
Улица | набережная Курьяновская |
Номер дома | 6с2 |
Объект № 18402
Складcкой кoмплeкc "Курьяново", общeй плoщaдью 155 000 квадратных метpoв, рaспoложен в Юго-Boсточнoм админиcтpативнoм округe горoда Mоcквы, в pайоне Печатники, мeжду Tpeтьим тpанcпоpтным кoльцом (ТTK) и MКАД (расстояние до МКАД 6 км). Здание представляет из себя 2-х этажное капитальное строение с системами тепло, водо и электроснабжения. Удобные подъездные пути со стороны ул. Шоссейная (м. Печатники, м. Текстильщики), либо Батайский проезд (м. Марьино). Наземным городским транспортом до объекта можно добраться на автобусе 736. Станция "Курьяново" МЦД-2 располагается в 15 минутах ходьбы от Складского комплекса.
Технические характеристики объекта:
Помещение отапливаемое;
Рабочая высота потолков: 6,5 метров;
Полы: шлифованный бетон;
Нагрузка на пол 5 т. на кв.м.;
Помещение с собственным пандусом;
Коммунальные платежи: рассчитываются по счетчику;
Паркинг: обширная наземная автостоянка;
Въезд на территорию платный - согласно прейскуранта;
Провайдеры: Билайн, Искра телеком, ТК Телл;
Лифты: 22 шт. г/п 5 т.;
Пожарная безопасность: наличие АПС;
Безопасность: КПП, огороженная территория, охрана по периметру;
Режим работы: 24/7
Инфраструктура: столовая, минимаркет, снековые аппараты.