Сдается коммерческая, 123 кв.м., 14/25 эт

Обзор
Арендная плата (Помесячно)
600 000
Цена кв.м. в год
0
Тип зданияБизнес-центр
Планировка avitoКабинетная, Открытая
Отделка помещения коммерческаяОфисная
Вход cian (avito)Общий с улицы
Тип парковкиНа улице
Тип арендыПрямая
ЗалогЕсть
Залог (avito)1 месяц
Сумма залога, руб600000
Тип Комиссия агента, %-руб%
Способ связи avitoПо телефону и в сообщениях
Статус готовностиВ эксплуатации
ТоргиНет
Тип коммерческойОфисное помещение
Площадь, кв.м.123
Этаж14
Этажность25
Адрес
СтранаРоссия
Регион страныМосква
РайонМосква
Населенный пунктМосква
Район городаХорошёвский
Улицапроспект Ленинградский
Номер дома36с40
В избранное Презентабельный офис
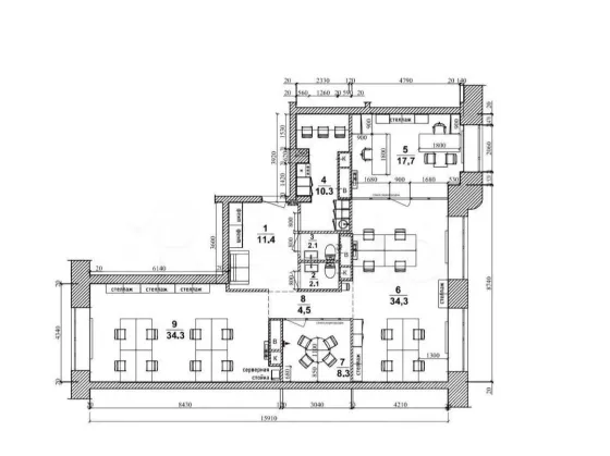
Объект № 19102 САО. Район Аэропорт. Многофункциональный комплекс ВТБ Арена Парк, класс А. Доступ 24/7. Прекрасная локация, статусное здание, презентабельная входная группа. Сдается просторный офисный блок премиум-класса 124.3 м2. Функциональная планировка: просторный кабинет руководителя; переговорная комната; 2 Ореn Sрасе для сотрудников; оборудованная зона кухни; 2 раздельных санузла. Круглосуточная охрана, видеоконтроль безопасности. Престижный район, развитая инфраструктура, удобная транспортная доступность. Прямая аренда, длительный срок. Коммунальные услуги оплачиваются по приборам учета. УСН.

Расположение

Важно! На карте не всегда указано точное местоположение. Более точную информацию можно узнать у менеджера, разместившего объект