Продается коммерческая, 325 кв.м., 1/ эт
Обзор№ - 17323
| Стоимость | 160 000 000 |
|---|---|
| Тип здания | Административное здание |
| Планировка avito | Кабинетная, Открытая |
| Отделка помещения коммерческая | Офисная |
| Вход cian (avito) | Отдельный с улицы |
| Тип парковки | На улице |
| Тип Комиссия агента, %-руб | % |
| Способ связи avito | По телефону и в сообщениях |
| Вариант задания цены (avito) | за всё |
| Торги | Нет |
| Тип коммерческой | Здание |
| Площадь, кв.м. | 325 |
| Этаж | 1 |
Адрес
| Страна | Россия |
|---|---|
| Регион страны | Москва |
| Район | Москва |
| Населенный пункт | Москва |
| Район города | Басманный |
| Улица | улица Земляной Вал |
| Номер дома | 56с4 |
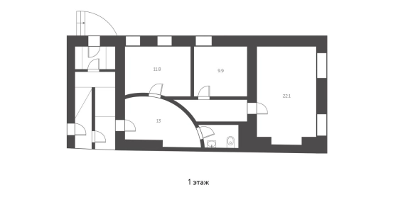
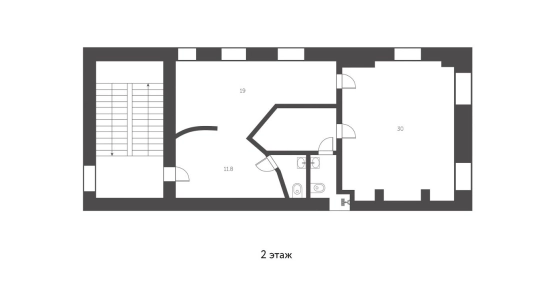
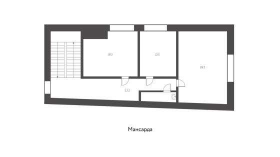
В избранное Здание, 325.4 м²
Объект № 17323
7 минут пешкам от м. Таганская, ул. Земляной Вал д. 56 стр.4, Продается арендный бизнес 3-х этажное( 4-х уровневое), нежилое здание 325.4 кв.м.,(не памятник), расположено на 1-линии, 2 отдельных входа, кабинетно-коридорная планировка, 8 комнат в каждой комнате мокрая точка, высота потолков 1 этаж-2.85 м, 2 этаж-3 м, 3 этаж- 2.5 м, сделан новый качественный ремонт с заменой всех коммуникаций, все центральные коммуникации, 50 кВт электричества, система кондиционирования, хорошая звукоизоляция, земельный участок 170 кв.м. в долгосрочной аренде до 2050 года, своя парковка на 5 м/м.































