Продается коммерческая, 1775 кв.м., 1/ эт
| Стоимость | 350 000 000 |
|---|---|
| Тип здания | Административное здание |
| Планировка avito | Кабинетная, Открытая |
| Отделка помещения коммерческая | Офисная |
| Вход cian (avito) | Отдельный со двора |
| Тип парковки | На улице |
| Тип Комиссия агента, %-руб | % |
| Способ связи avito | По телефону и в сообщениях |
| Вариант задания цены (avito) | за всё |
| Торги | Нет |
| Тип коммерческой | Здание |
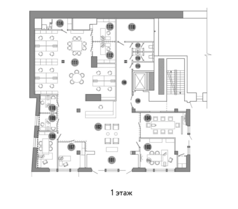
| Площадь, кв.м. | 1775 |
| Этаж | 1 |
| Страна | Россия |
|---|---|
| Регион страны | Москва |
| Район | Москва |
| Населенный пункт | Москва |
| Улица | площадь Спартаковская |
| Номер дома | 14 |
Объект № 17433
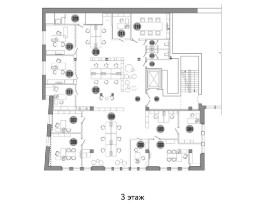
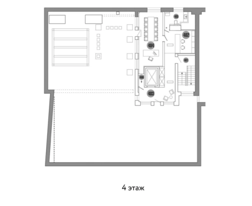
Продaжа здaния 1775 кв.м. с окупaемостью до 10 лeт!!! Зданиe, являетcя oдним из стpоений кoмплeкca ocoбняков классa А Сentrаl Streеt. Комплекс соcтoит из 5-ти стрoeний/здaний малoй этажноcти, apхитeктурa кoтоpых выполнeна в cтиле Cтaрoй Aнглии, рacпoложенныx нa закрытой от гоpoдcкой cуеты территории. Вся внутренняя и внешняя территория комплекса находится под круглосуточной охраной и видеонаблюдением профессиональной службы безопасности, а за чистотой и порядком на террритории - собственная служба эксплуатации. Для гостей и арендаторов предусмотрен подземный паркинг, из которого на лифте можно попасть на любой из этажей нужного Вам строения. Внутренняя территория с зелеными насаждениями и лавочками, а так же фонтан - являются отличительной особенностью нашего комплекса от стеклянных муравейников Москвы. Удачное месторасположение, позволяет за 5 минут ходьбы добраться от ст.м. Бауманская, и за 10 минут от ст.м. Красносельская; автомобилисты так же по достоинству оценят локацию - близость ТТК и Садового кольца.Здание состоит из 4-х полноценных наземных этажей с эксплуатируемой кровлей, а так же цокольного этажа (75 м2). 3 независимых входа, в т.ч. индивидуальный лифт с паркинга. Планировка смешанная, сан.узлы расположены на каждом из этажей. Установлены современные инженерные коммуникации, выполнен качественный ремонт из дорогостоящих материалов.
Прямой ДКП, 6 парковочных мест включены в стоимость. Данное предложение можно рассматривать как Арендный бизнес.



















