Сдается коммерческая, 1262 кв.м., 11/ эт
| Арендная плата (Помесячно) | 5 994 500 |
|---|---|
| Цена кв.м. в год | 0 |
| Тип здания | Бизнес-центр |
| Планировка avito | Кабинетная, Открытая |
| Отделка помещения коммерческая | Офисная |
| Вход cian (avito) | Общий с улицы |
| Тип парковки | На улице |
| Тип аренды | Прямая |
| Залог | Есть |
| Залог (avito) | 1 месяц |
| Сумма залога, руб | 5994500 |
| Тип Комиссия агента, %-руб | % |
| Способ связи avito | По телефону и в сообщениях |
| Торги | Нет |
| Тип коммерческой | Офисное помещение |
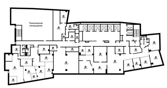
| Площадь, кв.м. | 1262 |
| Этаж | 11 |
| Страна | Россия |
|---|---|
| Регион страны | Москва |
| Район | Москва |
| Населенный пункт | Москва |
| Район города | Марьина Роща |
| Улица | улица Сущевский Вал |
| Номер дома | 18 |
Объект № 18326
Сдается офис (11-й этаж полностью). Аренда доступна с февраля 2026 года.
БЦ «Ново» - стильное офисное здание, расположенное в одном из самых развивающихся бизнес-районов Москвы в Белорусско-Савеловском субрынке. Арендаторы выбирают бизнес-центр за удобное расположение, современные инженерные системы, большой паркинг и эффективные планировки этажей. Необычные архитектурные решения, панорамное остекление и система подсветки сделали бизнес-центр доминантой района.
Приточно-вытяжная вентиляция, центральное отопление. Многоуровневый отапливаемый паркинг. Зарядные станции для электромобилей мощностью 22 КВт. 6 высокоскоростных лифтов с панорамным видом на Москву. Отдельный сервисный лифт с зоной разгрузки. Система контроля доступа — по картам, через мобильное приложение, по системе Face ID. Спринклерная система пожаротушения во всех помещениях. Система пожарной сигнализации ESMI. Круглосуточная система видеонаблюдения.
Класс здания: А
Транспортная доступность:
10 минут пешком до м. "Савеловская"
13 минут пешком до м. “Марьина Роща”
1 минута до ТТК
Ставка аренды включает НДС.
Коммунальные услуги и электричество оплачиваются отдельно.























