Сдается коммерческая, 251 кв.м., 1/3 эт

Обзор
Арендная плата (Помесячно)
2 270 000
Цена кв.м. в год
0
Тип зданияАдминистративное здание
Планировка avitoКабинетная, Открытая
Отделка помещения коммерческаяЧистовая
Вход cian (avito)Отдельный с улицы
Тип парковкиНа улице
Тип арендыПрямая
ЗалогЕсть
Залог (avito)1 месяц
Сумма залога, руб2270000
Тип Комиссия агента, %-руб%
Способ связи avitoПо телефону и в сообщениях
ТоргиНет
Тип коммерческойПомещение свободного назначения
Площадь, кв.м.251
Этаж1
Этажность3
Адрес
СтранаРоссия
Регион страныМосква
РайонМосква
Населенный пунктМосква
Улицаулица Мясницкая
Номер дома14/2с1
В избранное Шоурум на Мясницкой, супер трафик, 251 м²

Объект № 18533

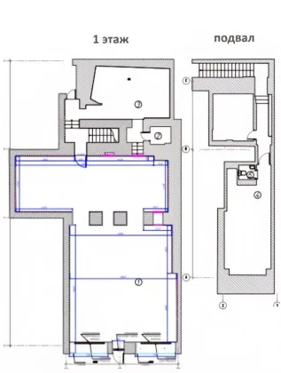
Сдается помещение свободного назначения с 2 ОТДЕЛЬНЫМИ входами с улицы и двора, на 1 этаже административного здания, в 4 мин. от метро Лубянка по адресу: улица Мясницкая, 14/2с1.

Общая площадь - 251 м2. 1 этаж - 190,1м, подвал - 60,8м. Свободный доступ 24/7. Коммунальные отдельно. Прямая аренда. Общепит рассматривается.

Ранее было кафе и магазин обуви.

Стоимость аренды - 2 270 000 рублей с НДС. 

Расположение

Важно! На карте не всегда указано точное местоположение. Более точную информацию можно узнать у менеджера, разместившего объект