Сдается коммерческая, 564 кв.м., 6/ эт
Обзор№ - 19199
| Арендная плата (Помесячно) | 2 115 000 |
|---|---|
| Цена кв.м. в год | 0 |
| Тип здания | Бизнес-центр |
| Планировка avito | Кабинетная |
| Отделка помещения коммерческая | Офисная |
| Вход cian (avito) | Общий с улицы |
| Тип парковки | На улице |
| Тип аренды | Прямая |
| Залог | Есть |
| Залог (avito) | 1 месяц |
| Сумма залога, руб | 2115000 |
| Тип Комиссия агента, %-руб | % |
| Способ связи avito | По телефону и в сообщениях |
| Торги | Нет |
| Тип коммерческой | Офисное помещение |
| Площадь, кв.м. | 564 |
| Этаж | 6 |
Адрес
| Страна | Россия |
|---|---|
| Регион страны | Москва |
| Район | Москва |
| Населенный пункт | Москва |
| Район города | Хорошёвский |
| Улица | проспект Ленинградский |
| Номер дома | 47с3 |
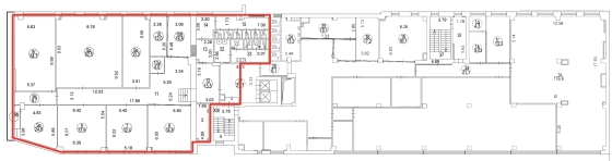
В избранное Офис, 564 м²
Объект № 19199
Сдается офис 564 м² на 6-м этаже Бизнес-центра "Авион". 2 минуты до метро "Аэропорт". Выезд на крупную магистраль Ленинградский проспект и ТТК. Освобождается в январе 2026 года.
О здании:
Профессиональная Управляющая компания;
6 скоростных лифта OTIS;
Центральные системы вентиляции и кондиционирования;
Широкий выбор провайдеров: Мегафон, ВымпелКом, Логика, Биз-Телеком;
Столовая и кафе на территории бизнес-центра;
Охраняемая наземная парковка;
Центральный ресепшн



































