Сдается коммерческая, 1990 кв.м., 1/4 эт
| Арендная плата (Помесячно) | 3 980 000 |
|---|---|
| Цена кв.м. в год | 0 |
| Тип здания | Административное здание |
| Тип этажа | Цокольный |
| Планировка avito | Кабинетная |
| Отделка помещения коммерческая | Без отделки |
| Вход cian (avito) | Отдельный с улицы |
| Удаленность от дороги (авито) | Первая линия |
| Тип парковки | На улице |
| Дополнительно о парковке avito | Бесплатная |
| Тип аренды | Прямая |
| Залог | Есть |
| Залог (avito) | 1 месяц |
| Сумма залога, руб | 3980000 |
| Арендные каникулы | Есть |
| Помещение занято | Нет |
| Тип Комиссия агента, %-руб | % |
| Способ связи avito | По телефону и в сообщениях |
| Класс здания | A |
| Торги | Нет |
| Тип коммерческой | Производственное помещение |
| Площадь, кв.м. | 1990 |
| Этаж | 1 |
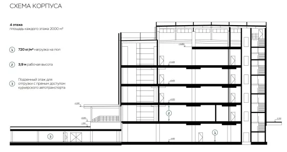
| Этажность | 4 |
| Страна | Россия |
|---|---|
| Регион страны | Москва |
| Район | Москва |
| Населенный пункт | Москва |
| Район города | Очаково-Матвеевское |
| Улица | улица Рябиновая |
| Номер дома | 44 |
Объект № 16076
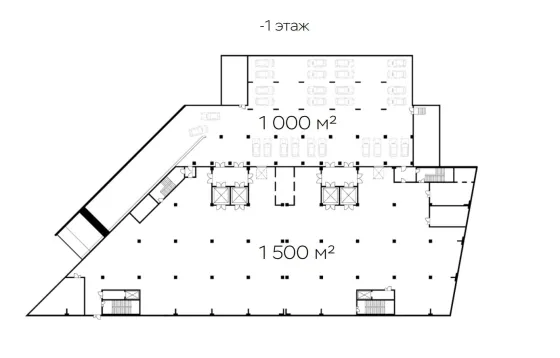
Сдается в производственном комплексе помещение под пищевое производство минус первый этаж 1990кв.м. по полу 700кв.м. плюс антресоль 490кв.м. без отделки в бетоне предоставляются арендные каникулы, 8х8 м шаг колонн 3,9 м рабочая высота потолка, пол бетон с антипылевым покрытием 720 кг. на кв.м. нагрузка на пол, 4 грузовых лифта грузоподъемностью 5 тонн. Автоматические секционные ворота, подземный этаж для отгрузки с прямым доступом курьерского автотранспорта. Пандус для разгрузки малотоннажного транспорта (+0,9 м) Электроснабжение — 2 МВт, II категория, собственный паркинг и огороженная территория. Системы пожаротушения и оповещения центральное отопление, водоснабжение, промышленная канализация эффективная инженерная инфраструктура и 2 интернет провайдера.























