Сдается коммерческая, 498 кв.м., 1/1 эт
| Арендная плата (Помесячно) | 375 000 |
|---|---|
| Цена кв.м. в год | 0 |
| Тип здания | Административное здание |
| Планировка avito | Кабинетная |
| Отделка помещения коммерческая | Чистовая |
| Вход cian (avito) | Отдельный с улицы |
| Тип парковки | На улице |
| Тип аренды | Прямая |
| Залог | Есть |
| Залог (avito) | 1 месяц |
| Сумма залога, руб | 375000 |
| Тип Комиссия агента, %-руб | % |
| Способ связи avito | По телефону и в сообщениях |
| Торги | Нет |
| Тип коммерческой | Складское помещение |
| Площадь, кв.м. | 498 |
| Этаж | 1 |
| Этажность | 1 |
| Страна | Россия |
|---|---|
| Регион страны | Московская область |
| Район | Богородский городской округ |
| Населенный пункт | Старая Купавна |
| Улица | улица Придорожная |
| Номер дома | 2 |
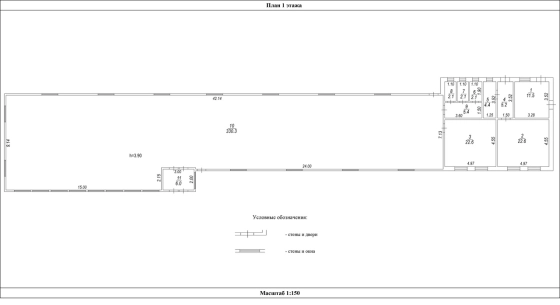
Объект № 17055
Аренда помещения под производство или теплый склад в 25 км от МКАД по Горьковскому шоссе, по адресу: Московская область, Богородский городской округ, Старая Купавна, улица Придорожная, 1А.
Общая площадь - 498 м2. Состоит из теплого помещения площадью 330 м2 с потолками 3,9 метра до низа фермы и административного двух этажного здания общей площадью 168 м2. Мощность - 40 кВт.
Полы армированные железобетонные со стяжкой, стены и потолок помещения - сендвич панели 20 см. Стены офисного здания пеноблок 40 см. Помещение с обособленными коммуникациями, отопление газовое, своя газовая котельная, вода -скважина, канализация - септик. Разводка есть. Место разгрузки можно формировать в любом месте.
Удобная транспортная доступность, расположен в 25 км от МКАД по Горьковскому шоссе, удобный заезд для грузового автомобиля.
Возможности использования: Логистика и хранение, Производство и переработка, Сельское хозяйство, Коммерческая аренда, а именно хранение товаров, фулфилмент, сезонное хранение, небольшое производство, сортировка и упаковка сырья, хранение товаров.
Стоимость аренды - 375 000 рублей. Коммунальные услуги оплачиваются отдельно.



























