Сдается коммерческая, 1666.8 кв.м., 4/4 эт

Обзор
Арендная плата (Помесячно)
4 583 920
Цена кв.м. в год
0
Тип зданияДругой
Планировка avitoКабинетная, Открытая
Отделка помещения коммерческаяОфисная
Вход cian (avito)Отдельный со двора
Тип парковкиНа улице
Тип арендыПрямая
ЗалогЕсть
Залог (avito)1 месяц
Сумма залога, руб4583920
Тип Комиссия агента, %-руб%
Способ связи avitoПо телефону и в сообщениях
ТоргиНет
Тип коммерческойОфисное помещение
Площадь, кв.м.1666.8
Этаж4
Этажность4
Адрес
СтранаРоссия
Регион страныМосква
РайонМосква
Населенный пунктМосква
Район городаДонской
Улицашоссе Варшавское
Номер дома9с1
В избранное Офис, 1666.8 м²

Объект № 18515

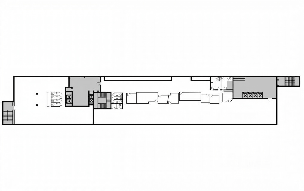
Сдается этаж (мансарда)1666.8 м2 в деловом квартале Даниловская мануфактура. Бизнес-центр класса В+. Высота потолка от 2 до 5,4 м. Помещения с офисной отделкой. Формат open space + 8 отдельный кабинетов. 11 санузлов. Два отдельных входа на этаж. 6 пассажирских лифтом и 2 грузовых. Офис располагается в корпусе Ряды Солдатенкова-2 прям напротив входа в квартал со стороны Новоданиловской набережной. Наземный паркинг на 330 машино-мест. Продуктовые магазины и аптека. Рестораны, кафе и столовые. Отель Азимут Набережная, work out, зоны отдыха. 10 минут пешком от станции метроТульская. 5 минут пешком от ж/д станции Тульская. Трамвайная остановка у входа в квартал. Заезд с Новоданиловской набережной и заезд с Варшавского шоссе. 500 метров от ТТК.

Даниловская мануфактура — это актуальное городское пространство для работы и отдыха. 12 исторических зданий, которые были реконструированы из ткацкой фабрики XIX века. Оригинальный кирпич, высокие потолки, большие окна, оригинальные планировки, старинные детали, внутренние дворы и камерные улочки. Почти 9 000 рабочих мест. Постоянные крупные компании арендаторов в квартале. 

Расположение

Важно! На карте не всегда указано точное местоположение. Более точную информацию можно узнать у менеджера, разместившего объект