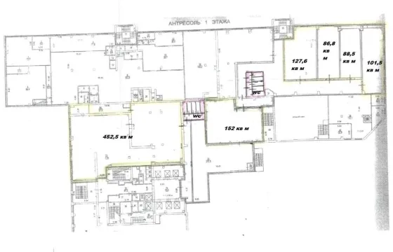
Сдается коммерческая, 86.8 кв.м., 2/ эт
Обзор№ - 19473
| Арендная плата (Помесячно) | 217 000 |
|---|---|
| Цена кв.м. в год | 0 |
| Тип здания | Бизнес-центр |
| Планировка avito | Кабинетная, Открытая |
| Отделка помещения коммерческая | Офисная |
| Вход cian (avito) | Общий с улицы |
| Тип парковки | На улице |
| Тип аренды | Прямая |
| Залог | Есть |
| Залог (avito) | 1 месяц |
| Сумма залога, руб | 217000 |
| Тип Комиссия агента, %-руб | % |
| Способ связи avito | По телефону и в сообщениях |
| Торги | Нет |
| Тип коммерческой | Офисное помещение |
| Площадь, кв.м. | 86.8 |
| Этаж | 2 |
Адрес
| Страна | Россия |
|---|---|
| Регион страны | Москва |
| Район | Москва |
| Населенный пункт | Москва |
| Район города | Даниловский |
| Улица | улица Мастеркова |
| Номер дома | 4 |
В избранное Офис, 86.8 м²
Объект № 19473
Сдается офис Бизнес-центре B класса в пешей доступности от метро Автозаводская (3 минуты). Удобный выезд на ТТК и проспект Андропова. В помещении стандартная офисная отделка, открытая планировка. В стоимость включены: НДС, коммунальные и эксплуатационные платежи. Стоимость парковочного места 12 тысяч с НДС. Предоставляется юридический адрес.

















