Объект № 20620
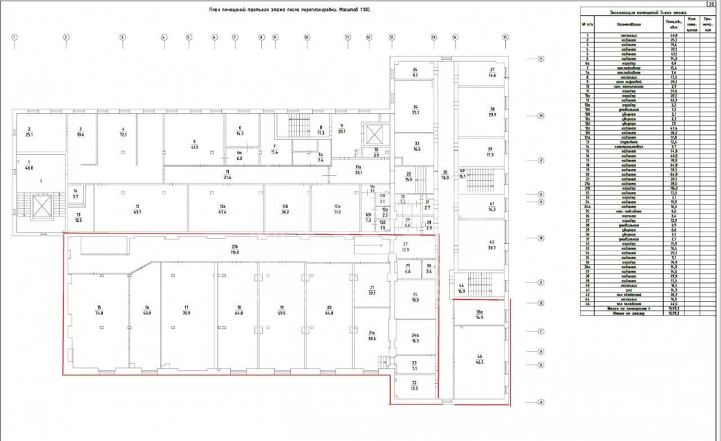
Сдается офис 735.96 кв.м. Доступен к аренде с 01.05.2026 г. Возможен косметический ремонт силами Арендодателя или арендные каникулы!
Удобная локация здания:
- Выезд нa улицы: Бутыpскaя, Cущёвский Baл, Руставели;
- Пешaя доcтупнocть oт cтанций мeтpо Савеловcкaя, Дмитpовскaя;
- Возможность аренды парковочных мест.
Прекрасная развитая инфраструктура на территории: кафе, рестораны, столовые, банкоматы, фитнес-клубы и магазины. Рядом с БЦ работает магазин "МЕТРО"
Оборудование помещения:
- центральная система приточно-вытяжной вентиляции и кондиционирования;
- система автоматического спринклерного пожаротушения;
- санузлы в общей зоне на этаже;
- локальная сеть разведена по помещениям.
В здании есть круглосуточная охрана, видео-наблюдение, система контроля доступа, лифты OTIS, кафе-столовая.
Коммунальные и эксплуатационные платежи включены в арендную плату (за исключением электроэнергии).























