Объект № 20622
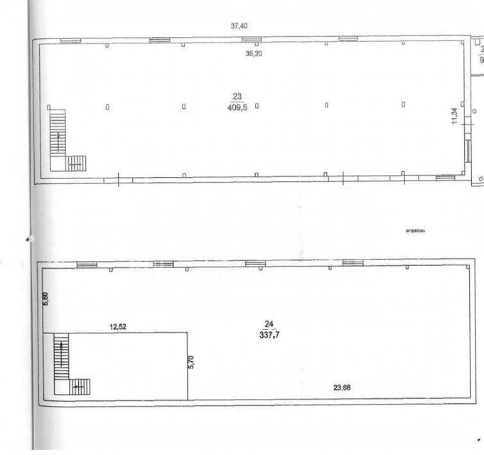
Сдаётся производственно-складское помещение площадью 747,2 кв.м. В ставку включен НДС 22%. Помещение (здание) расположено на территории производственно-складского комплекса. Территория комплекса закрыта, круглосуточно охраняется. Помещение тёплое, высота потолков 3,5 метра. Отопление городское магистральное + своя резервная котельная. LED освещение. Достаточное количество электроэнергии. Ворота на нулевом уровне. На территории есть возможность арендовать дополнительные площади, складскую технику, воспользоваться услугами ответственного хранения, транспортной компании, ж/д ветки. Объект обслуживается собственной службой эксплуатации. Удобный заезд с Горьковского шоссе, трассы М-12. Помещение идеально подойдёт для размещения склада, небольшого производства.



















