Сдается коммерческая, 189.2 кв.м., 3/4 эт
Обзор№ - 16014
| Арендная плата (Помесячно) | 756 800 |
|---|---|
| Цена кв.м. в год | 0 |
| Тип здания | Бизнес-центр |
| Планировка avito | Кабинетная, Открытая |
| Отделка помещения коммерческая | Чистовая |
| Вход cian (avito) | Общий с улицы |
| Удаленность от дороги (авито) | Первая линия |
| Тип парковки | На улице |
| Тип аренды | Прямая |
| Залог | Есть |
| Залог (avito) | 1 месяц |
| Сумма залога, руб | 756800 |
| Арендные каникулы | Есть |
| Помещение занято | Нет |
| Тип Комиссия агента, %-руб | % |
| Способ связи avito | По телефону и в сообщениях |
| Класс здания | B+ |
| Статус готовности | В эксплуатации |
| Торги | Нет |
| Тип коммерческой | Помещение свободного назначения |
| Площадь, кв.м. | 189.2 |
| Этаж | 3 |
| Этажность | 4 |
Адрес
| Страна | Россия |
|---|---|
| Регион страны | Москва |
| Район | Москва |
| Населенный пункт | Москва |
| Район города | Мещанский |
| Улица | проспект Мира |
| Номер дома | 26с1 |
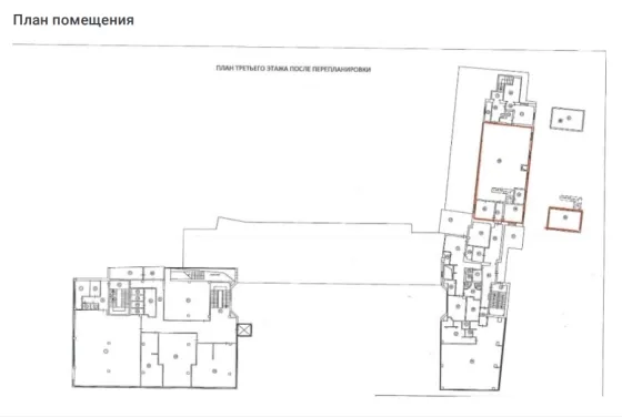
В избранное Офисный блок рядом с метро
Объект № 16014
ЦАО.Район Мещанский. БЦ «Аптекарский огород» класс В+. Первая линия. График 24/7. 2 минуты пешком метро Проспект Мира. Сдается офисный блок 189,2 м2, планировка смешанная, под ремонт, потолки 3 м. Свой санузел. Лифт. Арендные каникулы. Юридический адрес. Телефония, интернет Вымпелком. Для арендаторов есть комнаты для переговоров и конференц-зал.Ресепшен, контроль доступа в здание и офисный блок, круглосуточная охрана, видеонаблюдение. В ставку включены НДС, эксплуатация. Отдельно КУ. Есть подземный паркинг. Просмотры в рабочие дни с 10 до 18-00.













