Сдается коммерческая, 228.3 кв.м., 3/5 эт
| Арендная плата (Помесячно) | 856 125 |
|---|---|
| Цена кв.м. в год | 0 |
| Тип здания | Бизнес-центр |
| Планировка avito | Кабинетная |
| Отделка помещения коммерческая | Офисная |
| Вход cian (avito) | Общий со двора |
| Тип парковки | На улице |
| Тип аренды | Прямая |
| Залог | Есть |
| Залог (avito) | 2 месяца |
| Сумма залога, руб | 1712250 |
| Арендные каникулы | Есть |
| Помещение занято | Есть |
| Тип Комиссия агента, %-руб | % |
| Способ связи avito | По телефону и в сообщениях |
| Статус готовности | В эксплуатации |
| Торги | Нет |
| Тип коммерческой | Офисное помещение |
| Площадь, кв.м. | 228.3 |
| Этаж | 3 |
| Этажность | 5 |
| Страна | Россия |
|---|---|
| Регион страны | Москва |
| Район | Москва |
| Населенный пункт | Москва |
| Район города | Донской |
| Улица | улица Орджоникидзе |
| Номер дома | 11с10 |
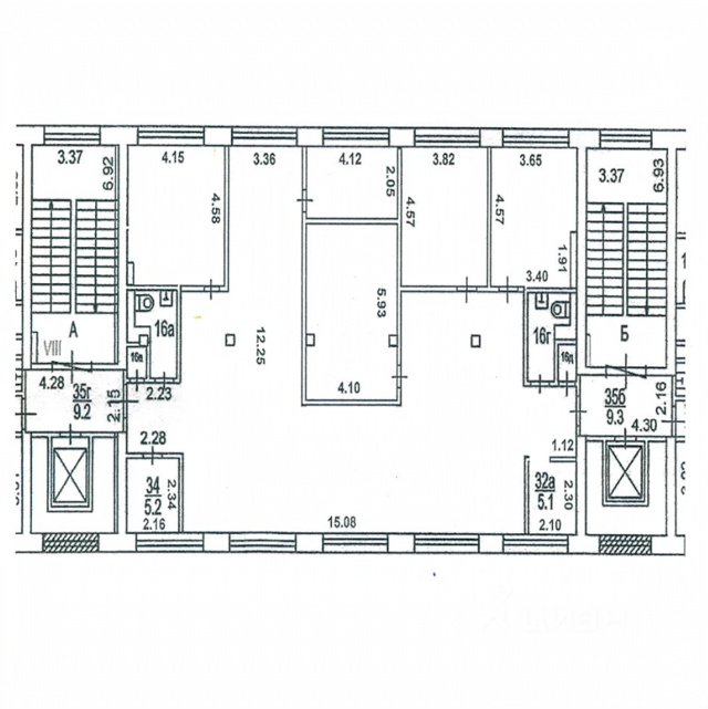
Объект № 19157
ЮАО, район Донской. Бизнес Парк. 3 -й этаж. 2 лифта. Сдается офисный блок с ремонтом и без мебели 228,3 м2. Смешанная планировка: опен спейс + кабинет руководителя, переговорная, 2 кабинета, гардеробная, серверная, кухня, комната для приема пищи. Потолки 3 - 3.5 м, много окон. Приточно-вытяжная вентиляция, кондиционирование, пожарная сигнализация. Мощность 21 кВт. Центральные коммуникации. Арендные каникулы. Юридический адрес, налоговая № 25. НДС включен в ставку. Коммунальные услуги по счетчикам (свет, вода, отопление). Прямая аренда, длительный срок. Круглосуточная охрана, пропускная система, профессиональная УК. Несколько независимых провайдеров. В здании своя проходная, ресепшн, зона ожидания и кафе-столовая. Обеспечительный платеж 2 месяца. Наземная охраняемая парковка на 1000 м/м. 5-6 минут пешком до метро Ленинский проспект и МЦК площадь Гагарина, удобный выезд на ТТК. Свободен с 01.02.2026 г.





































