Сдается коммерческая, 458 кв.м., 1/7 эт
Обзор№ - 19388
| Арендная плата (Помесячно) | 2 500 000 |
|---|---|
| Цена кв.м. в год | 0 |
| Тип здания | Жилой дом |
| Этаж дополнительно (авито) | Несколько этажей |
| Планировка avito | Открытая |
| Отделка помещения коммерческая | Офисная |
| Вход cian (avito) | Отдельный с улицы |
| Удаленность от дороги (авито) | Первая линия |
| Тип парковки | На улице |
| Тип аренды | Прямая |
| Залог | Есть |
| Залог (avito) | 1 месяц |
| Сумма залога, руб | 2500000 |
| Арендные каникулы | Есть |
| Помещение занято | Есть |
| Тип Комиссия агента, %-руб | % |
| Способ связи avito | По телефону и в сообщениях |
| Статус готовности | В эксплуатации |
| Торги | Нет |
| Тип коммерческой | Складское помещение |
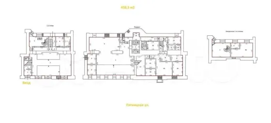
| Площадь, кв.м. | 458 |
| Этаж | 1 |
| Этажность | 7 |
Адрес
| Страна | Россия |
|---|---|
| Регион страны | Москва |
| Район | Москва |
| Населенный пункт | Москва |
| Район города | Замоскворечье |
| Улица | улица Пятницкая |
| Номер дома | 53/18с1 |
В избранное Прекрасное место пд общепит
Объект № 19388
ЦАО. Район Змоскворечье, деловой, туристический, престижный. Очень интенсивный пешеходный трафик. 1-я линия. Сдается 2-х уровневое помещение 458 м2 свободного/торгового назначения. Очень подойдет общепит(кафе, ресторан). 1-й этаж 147 м + антресоль 147 м2, потолки 4.5 м:собственный отдельный вход; 3-и больших панорамных окна с прекрасным видом; зал для гостей; бар; гардеробная; гостевой санузел; часть кухни. Цоколь 92 м2 + подвал 172 м2: гостевой зал c oкнами; куxня; 2 сaнузла; подсобныe помeщения(склад). Мощность 135 кВт, возможно увеличение. Есть возможность установки летней веранды. Рабочий вход со двора. Городской паркинг, парковочные места во дворе для погрузки/разгрузки. Пешая доступность до метро Новокузнецкая/Третьяковская, Полянка, Добрынинская/Серпуховская. Арендные каникулы обсуждаются индивидуально. НДС 5% включен. Помещение свободно с марта 2026 года, просмотры возможны. КУ не включены. 




















































