Продается коммерческая, 576 кв.м., 2/2 эт
Обзор№ - 19244
| Стоимость | 99 000 000 |
|---|---|
| Тип здания | Бизнес-центр |
| Планировка avito | Кабинетная |
| Отделка помещения коммерческая | Без отделки |
| Вход cian (avito) | Отдельный со двора |
| Удаленность от дороги (авито) | Первая линия |
| Тип парковки | На улице |
| Тип Комиссия агента, %-руб | % |
| Способ связи avito | По телефону и в сообщениях |
| Класс здания | B |
| Статус готовности | В эксплуатации |
| Вариант задания цены (avito) | за всё |
| Торги | Нет |
| Тип коммерческой | Помещение свободного назначения |
| Площадь, кв.м. | 576 |
| Этаж | 2 |
| Этажность | 2 |
Адрес
| Страна | Россия |
|---|---|
| Регион страны | Москва |
| Район | Москва |
| Населенный пункт | Москва |
| Район города | Обручевский |
| Улица | шоссе Старокалужское |
| Номер дома | 62 |
В избранное Продажа офиса
Объект № 19244
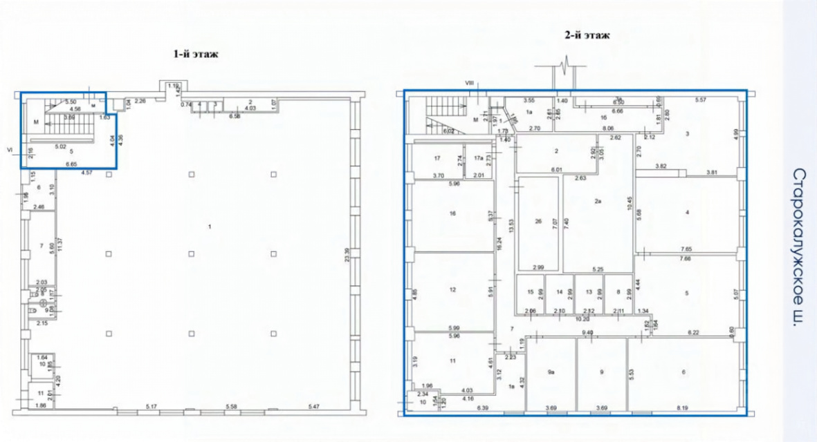
ЮЗАО, район Обручевский. БЦ «Валлекс». Кирпичное здание 2-а этажа. Продается офисное помещение 576 м на 2-м этаже. 2 отдельных входа со двора; свободная планировка, потолки 2.5-5.3 м(возможна перепланировка, в зоне высокого потолка можно сделать антресоль); мощность 50 кВт. Помещение без отделки, большие окна по периметру. Несколько мокрых точек(можно увеличить). Центральные коммуникации.Территория огорожена, круглосуточно охраняется, пропускная система. Парковка перед зданием. Прекрасная локация и визуализация, напротив станция БКЛ Воронцовская. В этом здании находится даркстор Ozon, сетевая кофейня, шоу-румы, офисы, мед.клиника, стоматологическая клиника и многое другое. Прямая продажа.

































