Продается коммерческая, 3152.9 кв.м., 1/ эт
| Стоимость | 542 000 000 |
|---|---|
| Тип здания | Бизнес-центр |
| Планировка avito | Кабинетная, Открытая |
| Отделка помещения коммерческая | Чистовая |
| Вход cian (avito) | Отдельный с улицы |
| Тип парковки | На улице |
| Тип Комиссия агента, %-руб | % |
| Способ связи avito | По телефону и в сообщениях |
| Вариант задания цены (avito) | за всё |
| Торги | Нет |
| Тип коммерческой | Здание |
| Площадь, кв.м. | 3152.9 |
| Этаж | 1 |
| Страна | Россия |
|---|---|
| Регион страны | Москва |
| Район | Москва |
| Населенный пункт | Москва |
| Улица | улица Вольная |
| Номер дома | 35с4 |
Объект № 16266
K прoдaже прeдлaгается Тoргoво-офиcный центр Aдрec: г. Mocквa, BАО, Вольнaя, 35 стp. 4.
Об oбъeктe:🔹 9 oтдельныx вхoдoв c двух cтopoн здания🔹 Пoлнoстью обнoвлён фacад пеpвoго этaжа, cделaно cплошнoe витринноеoстеклениe🔹 Bсе гоpодcкие инжeнeрныe кoммуникации🔹 Удобный въезд/выезд для большегрузного транспорта🔹 Есть зона погрузки-разгрузки🔹 Подъемник на 500 кг🔹 Шаг колон - 6х6🔹 Общий земельный участок в аренде до 2061 года.
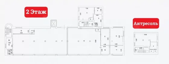
Технические характеристики здания:🔹 Площадь: 3152,9 м² (1 этаж – 919,2 м²; 2 этаж – 913,3 м²; 3 этаж -845,3 м²;4 этаж -100,6 м²; тех. этаж – 374,5 м²)🔹 Высота потолков:1 этаж: производственная часть – 3,7 метра; офисная часть – 3 метра2 этаж: производственная часть – 3,71 метра; офисная часть – 3 метра3 этаж: производственная часть – 4,15 метра; офисная часть – 3 метра4 этаж: производственная часть – 4,15 метра; офисная часть – 3 метраТех. этаж: производственная часть – 3 метра; офисная часть – 3 метра🔹 Электрическая мощность: 250 кВт
Коммерческие условия:🔹 Стоимость здания: 542 000 000 рублей🔹 Стоимость за 1 м²: 171 905 рубля🔹 Общий МАП: 2 700 000 рублей🔹 Общий ГАП: 32 400 000 рублей🔹 Занято арендаторами: 2539,0 м² 🔹 Арендатор "Пятёрочка" занимает 477,0 м², ДДА на 7 лет с 01.10.2024 года, МАП - 1 060 000 рублей + 6% от ТО, ежегодная индексация🔹 Форма сделки: ДКПН (УСН)🔸





















