Сдается коммерческая, 134 кв.м., 1/4 эт
| Арендная плата (Помесячно) | 357 333 |
|---|---|
| Цена кв.м. в год | 0 |
| Тип здания | Бизнес-центр |
| Планировка avito | Кабинетная |
| Отделка помещения коммерческая | Офисная |
| Вход cian (avito) | Отдельный со двора |
| Тип парковки | На улице |
| Тип аренды | Прямая |
| Залог | Есть |
| Залог (avito) | 2 месяца |
| Сумма залога, руб | 714666 |
| Тип Комиссия агента, %-руб | % |
| Способ связи avito | По телефону и в сообщениях |
| Статус готовности | В эксплуатации |
| Торги | Нет |
| Тип коммерческой | Помещение свободного назначения |
| Площадь, кв.м. | 134 |
| Этаж | 1 |
| Этажность | 4 |
| Страна | Россия |
|---|---|
| Регион страны | Москва |
| Район | Москва |
| Населенный пункт | Москва |
| Район города | Донской |
| Улица | улица Орджоникиждзе |
| Номер дома | 11с3 |
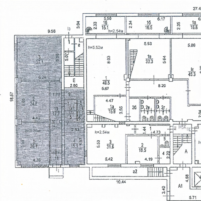
Объект № 19158
ЮАО, район Донской. Бизнес Парк.1 -й этаж.Отдельный вход. Сдается офисный блок 134 м, современный ремонт. Смешанная планировка:4 светлых кабинета, кухня, 2 с/у, коридор. Большие окна, кондиционер в каждом кабинете. Потолки 2.75 м. Приточно-вытяжная вентиляция, кондиционирование, пожарная сигнализация. Мощность 12 кВт. Центральные коммуникации. Арендные каникулы. Юридический адрес, налоговая № 25. НДС включен в ставку. Коммунальные услуги по счетчикам (свет, вода, отопление). Прямая аренда, длительный срок. Круглосуточная охрана, пропускная система, профессиональная УК. Несколько независимых провайдеров. В здании своя проходная, ресепшн, зона ожидания и кафе-столовая. Обеспечительный платеж 2 месяца. Наземная охраняемая парковка на 1000 м/м. 5-6 минут пешком до метро Ленинский проспект и МЦК площадь Гагарина, удобный выезд на ТТК.





































