Сдается коммерческая, 1008 кв.м., 1/1 эт
| Арендная плата (Помесячно) | 1 176 660 |
|---|---|
| Цена кв.м. в год | 0 |
| Тип здания | Другой |
| Планировка avito | Кабинетная |
| Отделка помещения коммерческая | Чистовая |
| Вход cian (avito) | Отдельный со двора |
| Тип парковки | На улице |
| Дополнительно о парковке avito | Бесплатная |
| Тип аренды | Прямая |
| Залог | Есть |
| Залог (avito) | 1 месяц |
| Сумма залога, руб | 1176660 |
| Тип Комиссия агента, %-руб | % |
| Способ связи avito | По телефону и в сообщениях |
| Статус готовности | В эксплуатации |
| Торги | Нет |
| Тип коммерческой | Производственное помещение |
| Площадь, кв.м. | 1008 |
| Этаж | 1 |
| Этажность | 1 |
| Страна | Россия |
|---|---|
| Регион страны | Московская область |
| Район | городской округ Химки |
| Населенный пункт | Химки |
| Улица | проезд Транспортный |
| Номер дома | 3 |
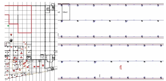
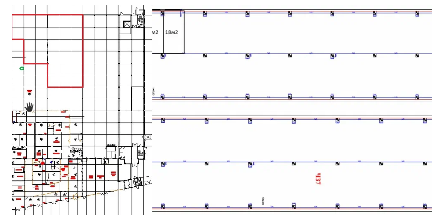
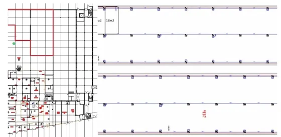
Объект № 19153
Московская область, Химки. Доступ 24/7. Отдельный вход. Сдается помещение под склад или производство, класс В. 1-й этаж, 1008 м2, планировка зальная, возможна перепланировка. Чистовая отделка. Общая высота потолка 8 м, рабочая 6 м. Электрическая мощность 300 кВт. 1 ворота на нулевой отметке. Центральное отопление, есть своя газовая котельная, температура зимой 18-24 градуса. На внутреннем дворе парковка для фур и личного транспорта, огороженная территория на улице. За дополнительную плату можно арендовать - на 2-м этаже офисный блок(8 кабинетов, ресепшн, кухня, комнаты приема пищи); - на 4-м этаже помещение для хранения готовой продукции/офис/подсобные помещения. Площадь обсуждается.Помещение свободно. Ленинградское шоссе, 4 км до МКАД. Эксплуатационные расходы включены. Прямая аренда, длительный срок.

















