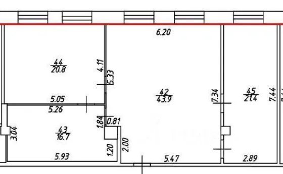
Сдается коммерческая, 103 кв.м., 3/5 эт
Обзор№ - 20064
| Арендная плата (Помесячно) | 206 000 |
|---|---|
| Цена кв.м. в год | 0 |
| Тип здания | Бизнес-центр |
| Планировка avito | Кабинетная, Открытая |
| Отделка помещения коммерческая | Офисная |
| Вход cian (avito) | Общий с улицы |
| Тип парковки | На улице |
| Тип аренды | Прямая |
| Залог | Есть |
| Залог (avito) | 1 месяц |
| Сумма залога, руб | 206000 |
| Тип Комиссия агента, %-руб | % |
| Способ связи avito | По телефону и в сообщениях |
| Торги | Нет |
| Тип коммерческой | Офисное помещение |
| Площадь, кв.м. | 103 |
| Этаж | 3 |
| Этажность | 5 |
Адрес
| Страна | Россия |
|---|---|
| Регион страны | Москва |
| Район | Москва |
| Населенный пункт | Москва |
| Район города | Сокол |
| Улица | проспект Ленинградский |
| Номер дома | 80к21 |
В избранное Сдается офис, 103 м²
Объект № 20064
Предлагаем в аренду офис площадью 103 кв.м. В арендную ставку включены: НДС и эксплуатационные услуги. Коммунальные расходы оплачиваются отдельно. Индивидуальные условия по интернету и телефонии. Дополнительные услуги для арендаторов: уборка помещений, ремонт и отделка помещений, охрана, эксплуатация и обслуживание инженерного оборудования и помещений, юридический адрес, парковка на территории.
Транспортная доступность: 5 минут пешком от метро Сокол.















