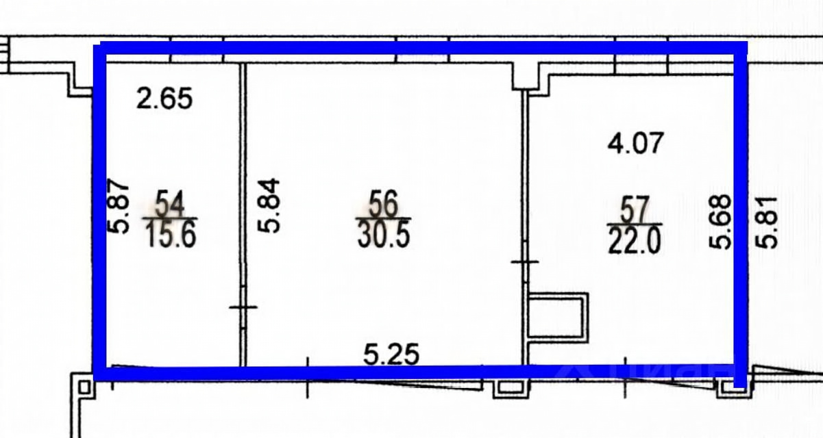
Сдается коммерческая, 74.9 кв.м., 3/7 эт
| Арендная плата (Помесячно) | 396 786 |
|---|---|
| Цена кв.м. в год | 0 |
| Тип здания | Бизнес-центр |
| Планировка avito | Кабинетная, Открытая |
| Отделка помещения коммерческая | Офисная |
| Вход cian (avito) | Общий с улицы |
| Тип парковки | На улице |
| Тип аренды | Прямая |
| Залог | Есть |
| Залог (avito) | 1 месяц |
| Сумма залога, руб | 396786 |
| Тип Комиссия агента, %-руб | % |
| Способ связи avito | По телефону и в сообщениях |
| Торги | Нет |
| Тип коммерческой | Офисное помещение |
| Площадь, кв.м. | 74.9 |
| Этаж | 3 |
| Этажность | 7 |
| Страна | Россия |
|---|---|
| Регион страны | Москва |
| Район | Москва |
| Населенный пункт | Москва |
| Район города | Арбат |
| Улица | улица Арбат |
| Номер дома | 10 |
Объект № 18686
Сдается уютный компактный офис. Три просторных кабинета с окнами, офисная отделка. Возможно предоставление юридического адреса.
Бизнес-центр «Мидланд Плаза» расположен в самом сердце Москвы, на улице Арбат, 10. В здании имеются кафе и рестораны, магазины и банкоматы. Для проведения деловых встреч и мероприятий в бизнес-центре предусмотрены конференц-залы различной вместимости, оснащённые всем необходимым оборудованием. Также имеется парковка для автомобилей арендаторов и посетителей. «Мидланд Плаза» уделяет особое внимание экологической безопасности и энергоэффективности здания. В нём установлены современные системы кондиционирования и вентиляции, а также используются энергосберегающие технологии, что позволяет снизить расходы на коммунальные услуги. Для удобства арендаторов и посетителей бизнес-центра в здании работает круглосуточная охрана и система видеонаблюдения.





























