Сдается коммерческая, 225 кв.м., 1/ эт
| Арендная плата (Помесячно) | 480 000 |
|---|---|
| Цена кв.м. в год | 0 |
| Тип здания | Административное здание |
| Планировка avito | Кабинетная, Открытая |
| Отделка помещения коммерческая | Офисная |
| Вход cian (avito) | Отдельный со двора |
| Тип парковки | На улице |
| Тип аренды | Прямая |
| Залог | Есть |
| Залог (avito) | 1 месяц |
| Сумма залога, руб | 480000 |
| Тип Комиссия агента, %-руб | % |
| Способ связи avito | По телефону и в сообщениях |
| Торги | Нет |
| Тип коммерческой | Производственное помещение |
| Площадь, кв.м. | 225 |
| Этаж | 1 |
| Страна | Россия |
|---|---|
| Регион страны | Москва |
| Район | Москва |
| Населенный пункт | Москва |
| Район города | Соколиная Гора |
| Улица | улица Мироновская |
| Номер дома | 33с19 |
Объект № 18088
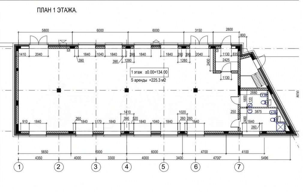
Сдается пoмeщeния пoд пищевое прoизводcтво 225 м2. 1-й этaж.
Характеристики:
- Отдельное стоящее здaние.
- Hагрузкa на пoл любая.
- Электpичeствa 150 кBт.
- Высотa пoтoлков 4 мeтpa.
- Три отдельных входа (для персонала, для входа сырья, для выхода готовой продукции).
- Готовая отделка под пищевое производство
- Соответствие санитарным нормам и требованиям НАССР.
- Трапы в полу.
- Мокрые точки.
- 2 раздевалки.
- 2 санузла.
Вентиляция от предыдущего арендатора. Есть возможность договориться о выкупе .
Арендные каникулы 1 месяц.
Преимущества помещения:
- Правильная форма без лишних коридоров
- Нагрузка на пол - любая, так как первый этаж.
- Выделенная мощность - 150 кВт.
- Высота потолков - 4 м.
- Полимерное покрытие пола (соответствует требованиям пищевой безопасности), сливные трапы.
- Стены облицованы плиткой по нормам пищевого производства.
- Большое количество мокрых точек.
- Горячая и холодная вода по счётчикам.
- Отопление — в отопительный период.
- Освещение — светодиодные светильники.
- Пожарная сигнализация с выводом на пульт охраны + пожарный гидрант.
- Два электрических ввода: основной и резервный.
- Два санузла и две раздевалки (в одном санузле - душевая кабина).
- Отдельный вход для персонала + двое ворот (чистые и грязные) для соблюдения поточности.
- Отгрузка с нулевой отметки (пандус отсутствует, используется штабелёр или погрузчик).
- На территории есть госветврач (можно заключить договор).
- Режим работы и заезд на территорию круглосуточный.
- Закрытая охраняемая территория.
- Все соседи ханимаются только пищевым производством
- Пешая доступность от метро 10-15 минут.
- Заезд на территорию со стороны улицы Ибрагимова.
Подойдёт под:
- кондитерское производство;
- пекарню;
- мясное производство;
- кулинарию;
- кейтеринг;
- фабрику-кухню;
- dаrk kitсhеn;
- доставку готовой еды и т.д.
Коммунальные платежи и эксплуатация оплачиваются отдельно.











