Сдается коммерческая, 1472 кв.м., 1/1 эт
| Арендная плата (Помесячно) | 2 269 000 |
|---|---|
| Цена кв.м. в год | 0 |
| Тип здания | Административное здание |
| Планировка avito | Кабинетная, Открытая |
| Отделка помещения коммерческая | Офисная |
| Вход cian (avito) | Отдельный с улицы |
| Удаленность от дороги (авито) | Первая линия |
| Тип парковки | На улице |
| Дополнительно о парковке avito | Подходит для грузового транспорта |
| Тип аренды | Прямая |
| Залог | Есть |
| Залог (avito) | 1 месяц |
| Сумма залога, руб | 2269000 |
| Арендные каникулы | Есть |
| Помещение занято | Нет |
| Тип Комиссия агента, %-руб | % |
| Способ связи avito | По телефону и в сообщениях |
| Торги | Нет |
| Тип коммерческой | Складское помещение |
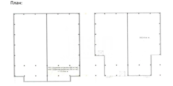
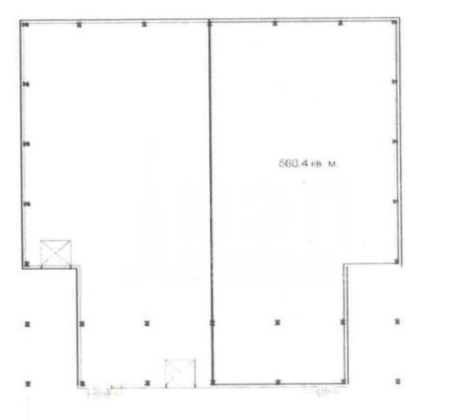
| Площадь, кв.м. | 1472 |
| Этаж | 1 |
| Этажность | 1 |
| Страна | Россия |
|---|---|
| Регион страны | Московская область |
| Район | городской округ Люберцы |
| Населенный пункт | посёлок Чкалово |
| Улица | улица Будённого |
| Номер дома | 16А |
Объект № 15718
Сдается Склад площадью 1 472,4 кв.м. на охраняемой территории в производственно-складском комплексе «Томилино 2». Возможна сдача отдельно двух автономных блоков по 736,2 кв.м. Цена – 18 500 руб. за 1 кв.м., УСН. Стоимость обслуживания управляющей компании входит в стоимость аренды, ресурсы отдельно компенсируются по показаниям. Обеспечительный платеж в размере 2-х месяцев аренды. Отдельно стоящее здание, разделенное на два автономных блока по 736,2 кв.м. Въезд на территорию комплекса осуществляется через кпп, организовано движение легкового и грузового транспорта, круглосуточный заезд, парковка, охрана входят в стоимость обслуживания. Покрытие пола склада - антипыль. Проектная нагрузка на пол Склада - не менее 6 тонн на кв.м. Проектная нагрузка на пол грузовой антресоли - 500 кг. на кв.м. Проектная нагрузка на пол офисной антресоли - 250 кг. на кв.м. Фундамент — столбчатый, бетон В25, вертикальная гидроизоляция (один слой); Каркас из металлоконструкций; Стены — сэндвич-панели с минераловатным утеплителем 120 мм; Пол — фибробетонная плита, толщина 180 мм, бетон В25 двойное армирование; Перекрытие (антресоль) железобетонная плита, толщина 180 мм, бетон В25. Подьёмно-секционные ворота 2800х3000 мм (автоматические) - 4 (Четыре) штуки; Доклевеллер (уравнительная платформа) - 4 (Четыре) штуки; установлена система звукового и светового оповещения о пожаре соответствии с нормативными требованиями действующего законодательства РФ; установлен пожарный гидрант; Электричество не менее 30 кВт/ч с возможностью увеличения; Водоснабжение - подключено по постоянной схеме в объеме не менее 0,5 м3 в сутки; Канализация - в объеме не менее 0,5 м3 в сутки; установлен санузел, подключен с канализации Система отопления установлены радиаторы отопления на антресоли, на складе установлены воздушные тепловые завесы в количестве 4 (Четыре) штуки и тепловентилятор Вулкан в количестве 2 (Две) штуки;

























