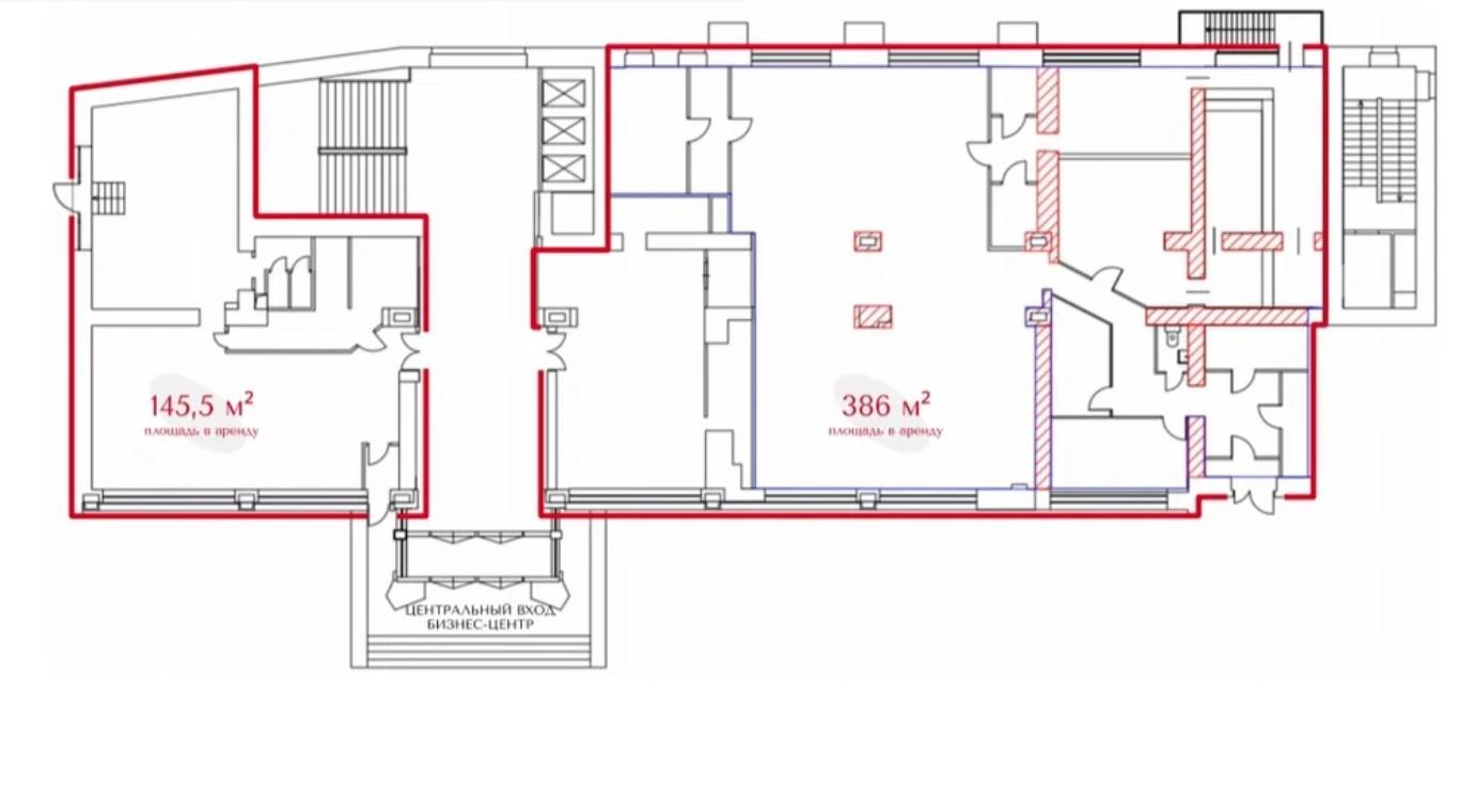
Сдается коммерческая, 145.5 кв.м., 1/ эт
| Арендная плата (Помесячно) | 709 312 |
|---|---|
| Цена кв.м. в год | 0 |
| Тип здания | Бизнес-центр |
| Планировка avito | Кабинетная, Открытая |
| Отделка помещения коммерческая | Офисная |
| Вход cian (avito) | Отдельный с улицы |
| Тип парковки | На улице |
| Тип аренды | Прямая |
| Залог | Есть |
| Залог (avito) | 1 месяц |
| Сумма залога, руб | 709312 |
| Тип Комиссия агента, %-руб | % |
| Способ связи avito | По телефону и в сообщениях |
| Торги | Нет |
| Тип коммерческой | Помещение свободного назначения |
| Площадь, кв.м. | 145.5 |
| Этаж | 1 |
| Страна | Россия |
|---|---|
| Регион страны | Москва |
| Район | Москва |
| Населенный пункт | Москва |
| Район города | Таганский |
| Улица | улица Земляной Вал |
| Номер дома | 50Ас3 |
Объект № 19892
Сдается помещение свободного назначения в Бизнес-центре "РТС" Земляной Вал. Отдельный вход. Подойдет по общепит. Панорамные витринные окна, открытая планировка, кухня, санузлы, идеально подойдет под общепит, фаст-фуд, бар, кофейня, торговое помещение. Возможна установка рекламной вывески на фасаде. Круглосуточный режим работы. Центральные коммуникации отопление, вода, канализация, приточно-вытяжная вентиляция, электрическая мощность 70кВт. Высокая проходимость и посещаемость.
1 минута до Садового кольца. 5 минут пешком от двух станций метро - "Курская", "Чкаловская". 8 минут пешком до станции МЦД "Курская".
Бизнес-центр «РТС» Земляной Вал — 11-ти этажный деловой комплекс класса «А» в центре Москвы на Садовом кольце. Витражное остекление и панорамный вид из помещений, с одной стороны, на набережную реки Яуза, с другой, на исторический центр Москвы. В бизнес-центре предусмотрено все для комфортного и эффективного функционирования компаний-арендаторов. Передовые инженерные решения позволяют надежно и уверенно вести бизнес в комфортных условиях: оптимальные планировочные решения, уютные зоны общественного пользования и изысканный вид на Садовое кольцо. Обслуживание здания и систем осуществляется по корпоративным стандартам комфорта, функциональности и надежности сети бизнес-центров «РТС».

















