Сдается коммерческая, 400 кв.м., 1/ эт
Обзор№ - 17789
| Арендная плата (Помесячно) | 1 000 000 |
|---|---|
| Цена кв.м. в год | 0 |
| Тип здания | Жилой дом |
| Тип этажа | Цокольный |
| Планировка avito | Кабинетная, Открытая |
| Отделка помещения коммерческая | Офисная |
| Вход cian (avito) | Отдельный с улицы |
| Тип парковки | На улице |
| Тип аренды | Прямая |
| Залог | Есть |
| Залог (avito) | 1 месяц |
| Сумма залога, руб | 1000000 |
| Тип Комиссия агента, %-руб | % |
| Способ связи avito | По телефону и в сообщениях |
| Торги | Нет |
| Тип коммерческой | Помещение свободного назначения |
| Площадь, кв.м. | 400 |
| Этаж | 1 |
Адрес
| Страна | Россия |
|---|---|
| Регион страны | Москва |
| Район | Москва |
| Населенный пункт | Москва |
| Район города | Арбат |
| Улица | бульвар Новинский |
| Номер дома | 1/2 |
В избранное Свободного назначения, 400 м²
Объект № 17789
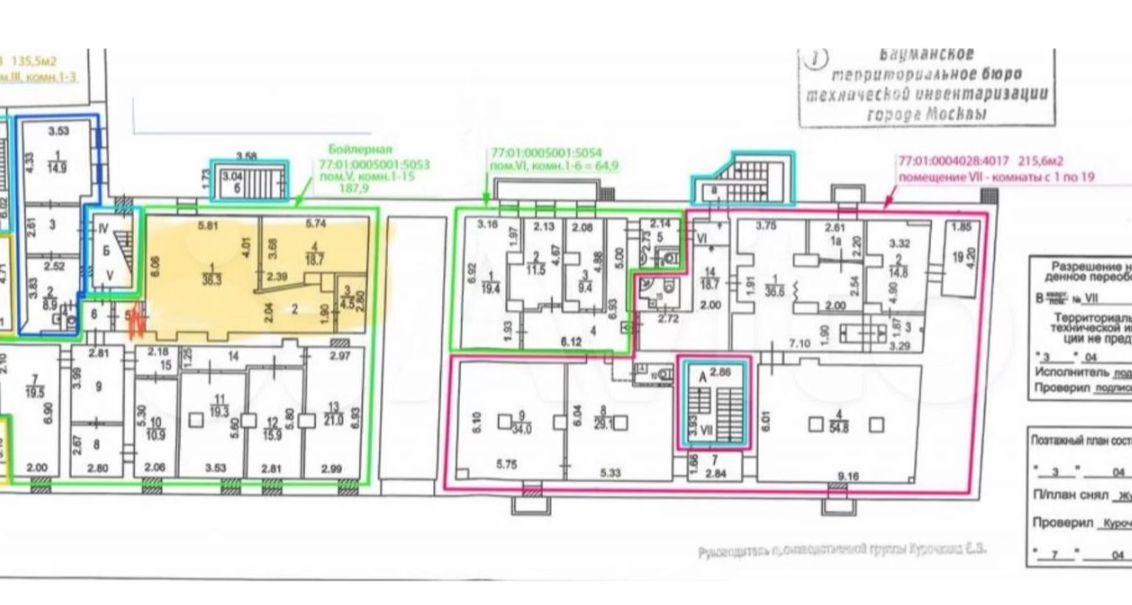
Сдается помещение площадью 400 м². Возможно деление (280 м² и 120 м²). Три отдельных входа. Электроснабжение 45 кВт (II категория). Есть возможность увеличения мощности! Закрытый охраняемый двор с парковкой. 6 туалетов и 5 душевых.
Место для вывески. Высота потолков: 3 – 3.5 м. Встроенные системы вентиляции и кондиционирования. Проводной интернет.
Срок аренды: От 3 до 5 лет.





































