Сдается коммерческая, 2884 кв.м., 1/3 эт
Обзор№ - 19676
| Арендная плата (Помесячно) | 4 191 900 |
|---|---|
| Цена кв.м. в год | 0 |
| Тип здания | Другой |
| Этаж дополнительно (авито) | Несколько этажей |
| Планировка avito | Кабинетная |
| Отделка помещения коммерческая | Офисная |
| Вход cian (avito) | Отдельный со двора |
| Тип парковки | На улице |
| Дополнительно о парковке avito | Бесплатная |
| Тип аренды | Прямая |
| Залог | Есть |
| Залог (avito) | 1 месяц |
| Сумма залога, руб | 4191900 |
| Арендные каникулы | Есть |
| Тип Комиссия агента, %-руб | % |
| Способ связи avito | По телефону и в сообщениях |
| Статус готовности | В эксплуатации |
| Торги | Нет |
| Тип коммерческой | Складское помещение |
| Площадь, кв.м. | 2884 |
| Этаж | 1 |
| Этажность | 3 |
Адрес
| Страна | Россия |
|---|---|
| Регион страны | Москва |
| Район | Москва |
| Населенный пункт | Москва |
| Район города | Очаково-Матвеевское |
| Улица | улица Рябиновая |
| Номер дома | 37с1 |
В избранное Теплый склад, 2884 м²
Объект № 19676
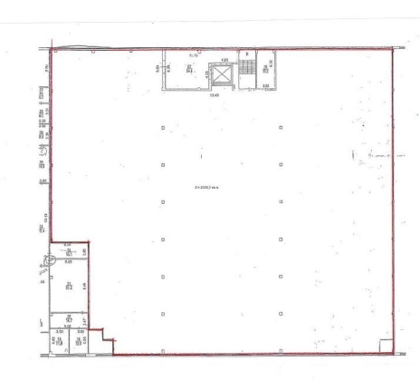
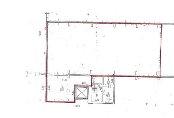
Сдается складское помещение общей площадью 2794.6 кв.м., которое состоит из:
Склад 344.1 кв.м. на 1-м этаже. Высота потолков 12 метров;
Склад 2450.5 кв.м. на 2-м этаже. Высота потолка 7 метров, нагрузка на пол 1.5 тонны на 1 кв.м. Индивидуальный лифт с грузоподъемностью 3.5 тонн с лифтером - сотрудником Арендодателя.
Офисное 89.4 кв.м. (5 комнат).
Прямая аренда, въезд автотранспорта на территорию комплекса платный. Электроэнергия и вывоз мусора оплачивается отдельно.
В стоимость аренды включены коммунальные и эксплуатационные платежи, НДС.



















































