Продается коммерческая, 130.7 кв.м., 1/ эт
| Стоимость | 25 023 000   | 
|---|---|
| Тип здания | Жилой дом | 
| Тип этажа | Цокольный | 
| Планировка avito | Кабинетная, Открытая | 
| Отделка помещения коммерческая | Без отделки | 
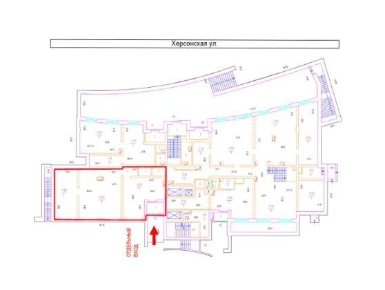
| Вход cian (avito) | Отдельный со двора | 
| Тип парковки | На улице | 
| Тип Комиссия агента, %-руб | % | 
| Способ связи avito | По телефону и в сообщениях | 
| Вариант задания цены (avito) | за всё | 
| Торги | Есть | 
| Тип коммерческой | Помещение свободного назначения | 
| Площадь, кв.м. | 130.7 | 
| Этаж | 1 | 
| Страна | Россия | 
|---|---|
| Регион страны | Москва | 
| Район | Москва | 
| Населенный пункт | Москва | 
| Район города | Черёмушки | 
| Улица | улица Херсонская | 
| Номер дома | 41 | 
Объект № 17664
Реализация имущества на электронных торгах!!!
Подберём для Вас ГАБ окупаемостью до 6 лет!!!
Подберём для Вас помещения с электронных торгов с окупаемостью до 6 лет!!!
Найдём для Вас недооценённые коммерческие помещения от собственников, со сроком окупаемости до 6 лет!!!
Даём стратегию по увеличению ликвидности и доходности объекта!!!
Так же готовы взять объекты недвижимости в оперативное управление!!!
Окончание приема заявок - 14.08.2025 - 15:00
Прозрачная история, полная стоимость в договоре купли-продажи, оплата безналичным путем. Имеем опыт успешного проведения торгов. Торги могут быть проведены дистанционно, Вам не обязательно приезжать в офис и на объект.
Гарантии: Сотрудничество оформляется официально по договору.
Имущество оформляется на Вас (Покупателя) по договору купли-продажи. Все действия регулируются Законом.
Оплата по безналичному расчету!
Подадим заявку на участие в торгах от Вашего имени. (Вам ЭЦП не нужна)!
Оплата за результат, после публикации протокола о результатах торгов!
Все необходимые документы подготовим за Вас!
Имеется ЭЦП и АККРЕДИТАЦИЯ на всех электронно-торговых площадках!
В кратчайшие сроки подготовим весь пакет документов и профессионально организуем подачу заявки для участия в торгах!
С нами покупка этого объекта для Вас ничем не отличается от стандартной процедуры покупки недвижимости!
Гарантируем чистоту и надежность сделки!
100% допуск заявки!
Участие производится на основании нотариальной доверенности. По всей России. Документооборот по электронной почте.
Мы заинтересованы в Ваших победах и продолжительном взаимовыгодном сотрудничестве!
Приглашаем к сотрудничеству бизнесменов, инвесторов, частных предпринимателей и просто всех, кто хочет значительно сэкономить на покупке недвижимости, а также вложить деньги.
Звоните и задавайте интересующие Вас вопросы!
Добавьте это объявление в Избранное - чтобы не потерять!

























