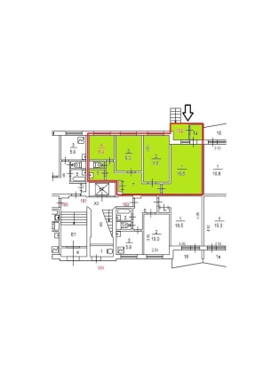
Продается коммерческая, 55.5 кв.м., 1/ эт

Обзор
Стоимость
8 942 000
Тип зданияЖилой дом
Планировка avitoКабинетная, Открытая
Отделка помещения коммерческаяОфисная
Вход cian (avito)Отдельный с улицы
Тип парковкиНа улице
Тип Комиссия агента, %-руб%
Способ связи avitoПо телефону и в сообщениях
Вариант задания цены (avito)за всё
ТоргиЕсть
Тип коммерческойПомещение свободного назначения
Площадь, кв.м.55.5
Этаж1
Адрес
СтранаРоссия
Регион страныМосква
РайонМосква
Населенный пунктМосква
Район городаОрехово-Борисово Северное
Улицаулица Генерала Белова
Номер дома19к1

Объект № 18955

Реализация имущества на электронных торгах!!!

Окончание приема заявок - 11.12.2025 - 15:00

Прозрачная история, полная стоимость в договоре купли-продажи, оплата безналичным путем. Имеем опыт успешного проведения торгов. Торги могут быть проведены дистанционно, Вам не обязательно приезжать в офис и на объект.

Гарантии: Сотрудничество оформляется официально по договору.

Имущество оформляется на Вас (Покупателя) по договору купли-продажи. Все действия регулируются Законом.

Оплата по безналичному расчету!

Подадим заявку на участие в торгах от Вашего имени. (Вам ЭЦП не нужна)!

Оплата за результат, после публикации протокола о результатах торгов!

Все необходимые документы подготовим за Вас!

Имеется ЭЦП и АККРЕДИТАЦИЯ на всех электронно-торговых площадках!

В кратчайшие сроки подготовим весь пакет документов и профессионально организуем подачу заявки для участия в торгах!

С нами покупка этого объекта для Вас ничем не отличается от стандартной процедуры покупки недвижимости!

Гарантируем чистоту и надежность сделки!

100% допуск заявки!

Участие производится на основании нотариальной доверенности. По всей России. Документооборот по электронной почте.

Мы заинтересованы в Ваших победах и продолжительном взаимовыгодном сотрудничестве!

Приглашаем к сотрудничеству бизнесменов, инвесторов, частных предпринимателей и просто всех, кто хочет значительно сэкономить на покупке недвижимости, а также вложить деньги.

Звоните и задавайте интересующие Вас вопросы!

Добавьте это объявление в Избранное - чтобы не потерять!

Подберём для Вас ГАБ окупаемостью до 6 лет!!!

Подберём для Вас помещения с электронных торгов с окупаемостью до 6 лет!!!

Найдём для Вас недооценённые коммерческие помещения от собственников, со сроком окупаемости до 6 лет!!!

Даём стратегию по увеличению ликвидности и доходности объекта!!!

Так же готовы взять объекты недвижимости в оперативное управление!!!

Расположение

Важно! На карте не всегда указано точное местоположение. Более точную информацию можно узнать у менеджера, разместившего объект