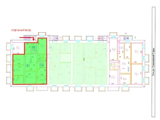
Продается коммерческая, 90.3 кв.м., 1/ эт
| Стоимость | 3 155 500 |
|---|---|
| Тип здания | Жилой дом |
| Планировка avito | Кабинетная, Открытая |
| Отделка помещения коммерческая | Без отделки |
| Вход cian (avito) | Отдельный с улицы |
| Тип парковки | На улице |
| Тип Комиссия агента, %-руб | % |
| Способ связи avito | По телефону и в сообщениях |
| Вариант задания цены (avito) | за всё |
| Торги | Нет |
| Тип коммерческой | Помещение свободного назначения |
| Площадь, кв.м. | 90.3 |
| Этаж | 1 |
| Страна | Россия |
|---|---|
| Регион страны | Москва |
| Район | Москва |
| Населенный пункт | Москва |
| Район города | Богородское |
| Улица | улица Буракова |
| Номер дома | 25А |
Объект № 13893
Реализация имущества на электронных торгах!!!
Окончание приема заявок - 09.04.2025 - 15:00
Начальная цена за объект: 6 311 000,00 руб.
Размер задатка: 631 100,00 руб.
Шаг аукциона: 157 775,00 руб.
Форма проведения: Публичное предложение
Дата начала приёма заявок: 05.03.2025 20:00:00
Дата окончания приёма заявок: 09.04.2025 15:00:00
Отбор участников: 16.04.2025 10:00
Проведение торгов: 18.04.2025 10:00
Подведение итогов: 18.04.2025 17:00
Шаг понижения цены: 315 550,00 руб.
Цена отсечения: 3 155 500,00 руб.
Прозрачная история, полная стоимость в договоре купли-продажи, оплата безналичным путем. Имеем опыт успешного проведения торгов. Торги могут быть проведены дистанционно, Вам не обязательно приезжать в офис и на объект.
Гарантии: Сотрудничество оформляется официально по договору.
Имущество оформляется на Вас (Покупателя) по договору купли-продажи. Все действия регулируются Законом.
Оплата по безналичному расчету!
Подадим заявку на участие в торгах от Вашего имени. (Вам ЭЦП не нужна)!
Оплата за результат, после публикации протокола о результатах торгов!
Все необходимые документы подготовим за Вас!
Имеется ЭЦП и АККРЕДИТАЦИЯ на всех электронно-торговых площадках!
В кратчайшие сроки подготовим весь пакет документов и профессионально организуем подачу заявки для участия в торгах!
С нами покупка этого объекта для Вас ничем не отличается от стандартной процедуры покупки недвижимости!
Гарантируем чистоту и надежность сделки!
100% допуск заявки!
Участие производится на основании нотариальной доверенности. По всей России. Документооборот по электронной почте.
Мы заинтересованы в Ваших победах и продолжительном взаимовыгодном сотрудничестве!
Приглашаем к сотрудничеству бизнесменов, инвесторов, частных предпринимателей и просто всех, кто хочет значительно сэкономить на покупке недвижимости, а также вложить деньги.
Звоните и задавайте интересующие Вас вопросы!
Добавьте это объявление в Избранное - чтобы не потерять!





























