Сдается коммерческая, 812 кв.м., 1/2 эт
| Арендная плата (Помесячно) | 1 309 000 |
|---|---|
| Цена кв.м. в год | 0 |
| Тип здания | Административное здание |
| Планировка avito | Кабинетная, Открытая |
| Отделка помещения коммерческая | Офисная |
| Вход cian (avito) | Отдельный с улицы |
| Удаленность от дороги (авито) | Первая линия |
| Тип парковки | На улице |
| Дополнительно о парковке avito | Подходит для грузового транспорта |
| Кол-во парковочных мест | 250 |
| Тип аренды | Прямая |
| Залог | Есть |
| Залог (avito) | 1 месяц |
| Сумма залога, руб | 1309000 |
| Арендные каникулы | Есть |
| Помещение занято | Нет |
| Тип Комиссия агента, %-руб | % |
| Способ связи avito | По телефону и в сообщениях |
| Класс здания | A |
| Торги | Нет |
| Тип коммерческой | Складское помещение |
| Площадь, кв.м. | 812 |
| Этаж | 1 |
| Этажность | 2 |
| Страна | Россия |
|---|---|
| Регион страны | Москва |
| Район | Краснопахорский район |
| Населенный пункт | ДСПК Шарапово |
| Номер дома | 2 |
Объект № 16435
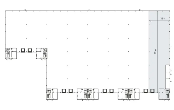
Сдается в аренду склад общая площадь 812кв.м. склад 630кв.м. офисная часть 182кв.м. рабочая высота потолка 8 метров, нагрузка на пол 5 тонн на кв.м. шаг колонн 12х18, электроэнергия от 30кВт с увеличением до 350кВт. Производство и офисные помещения с отделкой парковочные места 1 грузовое и 2 легковых, отдельные доковые ворота для разгрузки погрузки. Арендная ставка склада 18000 за кв.м. в год офис 24000 рублей кв.м. в год включая НДС и Эксплуатацию, коммунальные расходы по приборам учета индексация 10% обеспечительный платеж 3 месяца. Срок договора от 5 лет с пролонгацией, дополнительная аренда грузовых и легковых парковочных мест по запросу, транспортная доступность ЦКАД/А-107 между Калужским и Киевским шоссе г. Москва, п. Краснопахорское, кв. 61.



























