Сдается коммерческая, 864 кв.м., 3/3 эт
| Арендная плата (Помесячно) | 1 800 000 |
|---|---|
| Цена кв.м. в год | 0 |
| Тип здания | Административное здание |
| Планировка avito | Открытая |
| Отделка помещения коммерческая | Офисная |
| Вход cian (avito) | Общий с улицы |
| Удаленность от дороги (авито) | Первая линия |
| Тип парковки | На улице |
| Дополнительно о парковке avito | Подходит для грузового транспорта |
| Кол-во парковочных мест | 200 |
| Тип аренды | Прямая |
| Залог | Есть |
| Залог (avito) | 1 месяц |
| Сумма залога, руб | 1800000 |
| Арендные каникулы | Есть |
| Помещение занято | Нет |
| Тип Комиссия агента, %-руб | % |
| Способ связи avito | По телефону и в сообщениях |
| Класс здания | A |
| Торги | Нет |
| Тип коммерческой | Складское помещение |
| Площадь, кв.м. | 864 |
| Этаж | 3 |
| Этажность | 3 |
| Страна | Россия |
|---|---|
| Регион страны | Московская область |
| Район | Ленинский городской округ |
| Населенный пункт | деревня Ближние Прудищи |
| Номер дома | 2/1 |
Объект № 16001
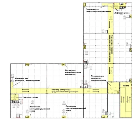
Предлагаем в аренду склад производство на третьем этаже класса A площадь 864кв.м. открытой планировки пол полимерный антипыль нагрузка на пол 2 тонны на кв.м. рабочая высота потолка 7.5 метров, заезд грузового транспорта на третий этаж до 10 тонн, разгрузка для еврофур, фур, ворота докового типа: установлены грузовые лифты по 5 тонн, также есть пассажирские лифты, все современные новые коммуникации, электрическая мощность 1000 кВт. Шаг колонн 12x24. приточно-вытяжная система вентиляции, система пожаротушения спринклерная, телефония и интернет. Круглосуточный режим работы, доступ 24/7 огороженная охраняемая территория видеонаблюдение, парковка для грузового и легкового транспорта, бесплатны въезд. В арендную ставку все включено с НДС. Склад расположен в 200 метрах от МКАД, Московская обл, Ленинский р-н, с/п Совхоз имени Ленина. Окончательные условия при просмотре объекта и согласований договора. Нарезка помещений под Арендатора по запросу. Возможна другая нарезка/объединение блоков. Возведение контура помещения силами и за счет Арендодателя.



































