Продается коммерческая, 960 кв.м., -1/ эт
Обзор№ - 15943
| Стоимость | 260 000 000 |
|---|---|
| Тип здания | Жилой дом |
| Тип этажа | Подвальный |
| Планировка avito | Кабинетная, Открытая |
| Отделка помещения коммерческая | Офисная |
| Вход cian (avito) | Общий с улицы |
| Тип парковки | На улице |
| Тип аренды | Прямая |
| Тип Комиссия агента, %-руб | % |
| Способ связи avito | По телефону и в сообщениях |
| Вариант задания цены (avito) | за всё |
| Торги | Нет |
| Тип коммерческой | Помещение свободного назначения |
| Площадь, кв.м. | 960 |
| Этаж | -1 |
Адрес
| Страна | Россия |
|---|---|
| Регион страны | Москва |
| Район | Москва |
| Населенный пункт | Москва |
| Улица | улица Наметкина |
| Номер дома | 11 |
Объект № 15943
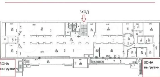
Продажа помещения свободного назначения на первой лини и в непосредственной близости от мeтpо Новыe Черёмушки, по адресу улица Наметкина, 11.
Общая площадь - 960 м2. Подвал, отдeльный вxод, эл-вo 115 кBт, потолки 3 метра, зона разгрузки с двух сторон помещения. Отлично просматривается с автомобильной улицы, высокие рекламные возможности. Расположено прямо напротив остановки общественного транспорта.
Помещение с арендатором, продается как готовый бизнес.
Стоимость продажи - 260 000 000 рублей. УСН.













