Продается коммерческая, 7498 кв.м., 1/7 эт
Обзор№ - 16623
| Стоимость | 1 049 720 000 |
|---|---|
| Тип здания | Бизнес-центр |
| Планировка avito | Кабинетная, Открытая |
| Отделка помещения коммерческая | Чистовая |
| Вход cian (avito) | Отдельный с улицы |
| Тип парковки | На улице |
| Тип Комиссия агента, %-руб | % |
| Способ связи avito | По телефону и в сообщениях |
| Вариант задания цены (avito) | за всё |
| Торги | Нет |
| Тип коммерческой | Офисное помещение |
| Площадь, кв.м. | 7498 |
| Этаж | 1 |
| Этажность | 7 |
Адрес
| Страна | Россия |
|---|---|
| Регион страны | Москва |
| Район | Москва |
| Населенный пункт | Москва |
| Улица | проезд Огородный |
| Номер дома | 5с3 |
В избранное Офис (7498 м²)
Объект № 16623
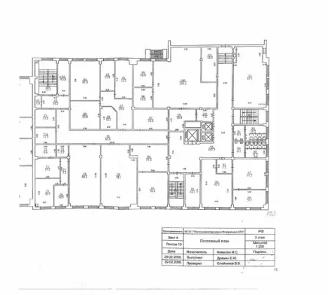
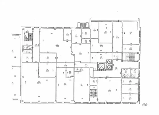
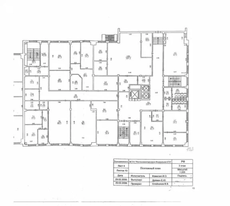
Современный БЦ расположен в пешей доступности от метро. Полностью закрытая, охраняемая территория. Описание помещения: Целиком здание площадью - 7 498,6 м2. Всего 10 уровней - подвал, 8 этажей и тех. этаж. В наличии все коммуникации, прямые договоры с поставщиками услуг. Высота потолков от 3,25 м - 4,10 м. Отдельный вход. Этаж: 1. Планировка: смешанная. Типовой ремонт. Высокие потолки. Высота потолка: 4.1м. Тип налогообложения: С НДС. Зем. участок в долгосрочной аренде. Продажа по ДКП с НДС. Налоговая: 15. Лифты: Есть. Вентиляция: Приточно-вытяжная. Кондиционирование: Сплит-системы.



























