Сдается коммерческая, 546 кв.м., 2/2 эт
Обзор№ - 16522
| Арендная плата (Помесячно) | 2 535 715 |
|---|---|
| Цена кв.м. в год | 0 |
| Тип здания | Бизнес-центр |
| Планировка avito | Кабинетная, Открытая |
| Отделка помещения коммерческая | Чистовая |
| Вход cian (avito) | Общий с улицы |
| Тип парковки | На улице |
| Тип аренды | Прямая |
| Залог | Есть |
| Залог (avito) | 1 месяц |
| Сумма залога, руб | 2535715 |
| Тип Комиссия агента, %-руб | % |
| Способ связи avito | По телефону и в сообщениях |
| Торги | Нет |
| Тип коммерческой | Офисное помещение |
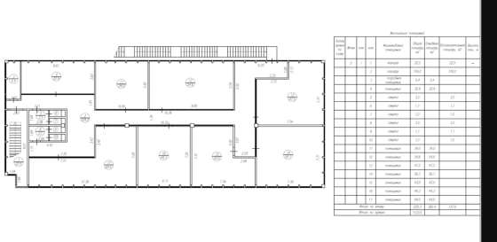
| Площадь, кв.м. | 546 |
| Этаж | 2 |
| Этажность | 2 |
Адрес
| Страна | Россия |
|---|---|
| Регион страны | Москва |
| Район | Москва |
| Населенный пункт | Москва |
| Район города | Даниловский |
| Улица | переулок Холодильный |
| Номер дома | 3к1с2 |
В избранное Офис (B+) в Рябовской мануфактуре, 546,1 м2
Объект № 16522
Сдается офис в лофт-квартале Товарищество Рябовской Мануфактуры (100 м от метро).
Ощая площадь - 546,1 м2. 2 этаж. Помещение с ремонтом, отдельный вход, высокие потолки, большие окна, функциональная планировка. Имеется с/у. Свободный доступ в квартал 24/7, собственная парковка на 300 м/м.
Ставка аренды - 2 536 179 рублей с НДС.









