Сдается коммерческая, 663 кв.м., 1/2 эт
Обзор№ - 16913
| Арендная плата (Помесячно) | 2 580 000 |
|---|---|
| Цена кв.м. в год | 0 |
| Тип здания | Бизнес-центр |
| Этаж дополнительно (авито) | Несколько этажей |
| Планировка avito | Кабинетная, Открытая |
| Отделка помещения коммерческая | Офисная |
| Вход cian (avito) | Отдельный с улицы |
| Удаленность от дороги (авито) | Первая линия |
| Тип парковки | На улице |
| Тип аренды | Прямая |
| Залог | Есть |
| Залог (avito) | 1 месяц |
| Сумма залога, руб | 2580000 |
| Арендные каникулы | Есть |
| Помещение занято | Нет |
| Тип Комиссия агента, %-руб | % |
| Способ связи avito | По телефону и в сообщениях |
| Статус готовности | В эксплуатации |
| Торги | Нет |
| Тип коммерческой | Здание |
| Площадь, кв.м. | 663 |
| Этаж | 1 |
| Этажность | 2 |
Адрес
| Страна | Россия |
|---|---|
| Регион страны | Москва |
| Район | Москва |
| Населенный пункт | Москва |
| Район города | Басманный |
| Улица | переулок Подсосенский |
| Номер дома | 23 6/8 |
В избранное Отдельно стоящее здание
Объект № 16913
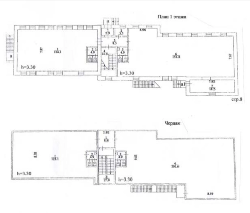
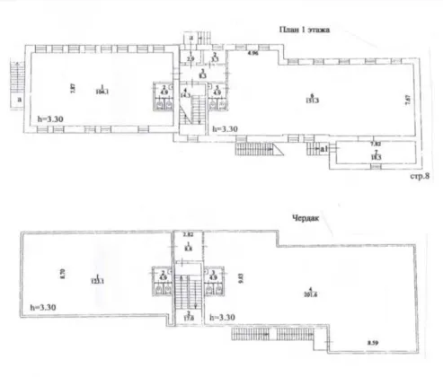
ЦАО. Район Басманный. Сдается отдельно стоящее здание на территории БЦ. 2 этажа 663 м: 1 этаж - 312,5 м2 и мансарда - 360,5 м2. Потолки 3.3 м. Отдельный вход с Подсосенского переулка и запасной со двора.Кабинетная планировка, свежий ремонт. Система кондиционирования, приточно-вытяжная вентиляция, пожарная и охранная сигнализации. Центральные коммуникации. Телефония, интернет. Мощность 45 кВт. Прямая аренда, долгосрочный договор. Коммунальные платежи, связь, охрана, клининг, паркинг оплачивается отдельно. Эксплуатация включена. Депозит 2 месяца. Район плотной жилой и деловой активности. Недалеко Садовое и Бульварное кольцо. 


















