Продается коммерческая, 925 кв.м., 3/5 эт
Обзор№ - 16781
| Стоимость | 120 250 000 |
|---|---|
| Тип здания | Бизнес-центр |
| Планировка avito | Кабинетная, Открытая |
| Отделка помещения коммерческая | Офисная |
| Вход cian (avito) | Общий с улицы |
| Тип парковки | На улице |
| Тип Комиссия агента, %-руб | % |
| Способ связи avito | По телефону и в сообщениях |
| Вариант задания цены (avito) | за всё |
| Торги | Нет |
| Тип коммерческой | Офисное помещение |
| Площадь, кв.м. | 925 |
| Этаж | 3 |
| Этажность | 5 |
Адрес
| Страна | Россия |
|---|---|
| Регион страны | Москва |
| Район | Москва |
| Населенный пункт | Москва |
| Район города | Головинский |
| Улица | переулок 2-й Лихачевский |
| Номер дома | 1с11 |
В избранное Продается офис (B)
Объект № 16781
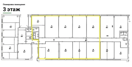
Продается офис в Бизнес-центре Лихоборы в 900 метрах от станции Коптево по адресу 2-й Лихачёвский переулок, 1 с11.
Общая площадь - 925 м2. 3-й этаж. Помещение с отделкой. Планировка кабинетная. Вход общий с улицы. Парковка на территории БЦ.
Стоимость продажи - 120 250 000 рублей. В собственности больше 5-ти лет, один взрослый собственник (физ. лицо), без обременений.



















