Продается коммерческая, 608 кв.м., 2/2 эт
Обзор№ - 17014
| Стоимость | 210 000 000 |
|---|---|
| Тип здания | Административное здание |
| Планировка avito | Кабинетная, Открытая |
| Отделка помещения коммерческая | Офисная |
| Вход cian (avito) | Отдельный с улицы |
| Тип парковки | На улице |
| Тип Комиссия агента, %-руб | % |
| Способ связи avito | По телефону и в сообщениях |
| Вариант задания цены (avito) | за всё |
| Торги | Нет |
| Тип коммерческой | Офисное помещение |
| Площадь, кв.м. | 608 |
| Этаж | 2 |
| Этажность | 2 |
Адрес
| Страна | Россия |
|---|---|
| Регион страны | Москва |
| Район | Москва |
| Населенный пункт | Москва |
| Район города | Басманный |
| Улица | бульвар Покровский |
| Номер дома | 16-18с4-4А |
В избранное Продается Офис (B)
Объект № 17014
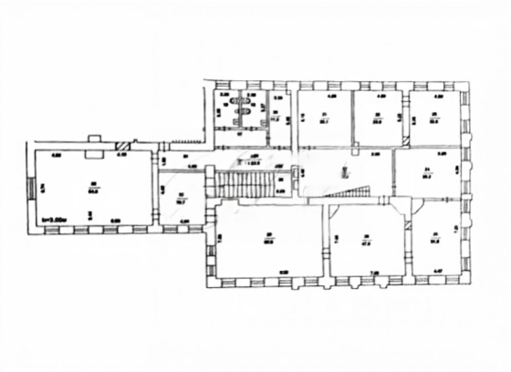
Предлагается офис площадью 607 кв.метров в известном особняке "Дом Телешовых". Объект культурного наследия Москвы федерального значения 1912 г.
Первый этаж 26 кв.метров, высота потолков 4 метра; второй этаж 430 кв.метров, высота потолков 4 метра; третий этаж - 151 кв.метр, высота потолков - 2,6 метра. Окна выходят на 4-ре стороны. Парковка во дворе.
Охрана круглосуточная. Есть арендатор сроком на 11 месяцев.















