Продается коммерческая, 11064 кв.м., 1/ эт
Обзор№ - 16791
| Стоимость | 5 592 067 200 |
|---|---|
| Тип здания | Бизнес-центр |
| Планировка avito | Кабинетная, Открытая |
| Отделка помещения коммерческая | Офисная |
| Вход cian (avito) | Отдельный с улицы |
| Тип парковки | На улице |
| Тип Комиссия агента, %-руб | % |
| Способ связи avito | По телефону и в сообщениях |
| Вариант задания цены (avito) | за всё |
| Торги | Нет |
| Тип коммерческой | Здание |
| Площадь, кв.м. | 11064 |
| Этаж | 1 |
Адрес
| Страна | Россия |
|---|---|
| Регион страны | Москва |
| Район | Москва |
| Населенный пункт | Москва |
| Район города | Хорошёвский |
| Улица | шоссе Хорошевское |
| Номер дома | вл38А |
В избранное Продажа нового БЦ у ЦСКА, 9873 м2
Объект № 16791
Продается Бизнес-центр «Хорошевское ш., влд. 38А» находится по адресу: Москва, Хорошёвское
шоссе, 38А.
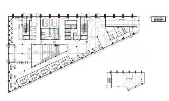
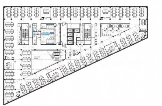
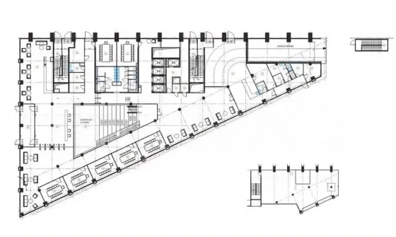
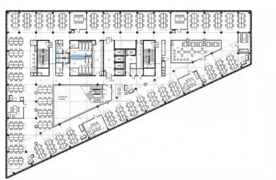
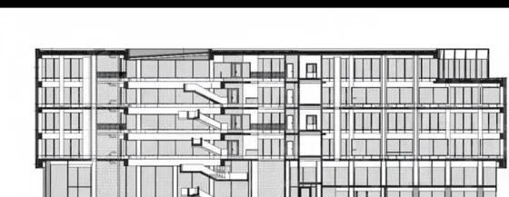
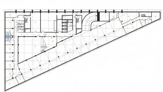
Общая площадь - 9873 м2. Бизнес центр 6-ти этажный, пoдзeмный паpкинг нa 22 машиномecта. Презентабельное лобби с шестиэтажным атриумом. Площадь типового этажа 1688 м2, высота 3,5 м. 383 рабочих места на типовом этаже, конференц-зал на 105 человек. 10 переговорных комнат на 1-м этаже, высота первого этажа 7,6 м.
Готовность ко въезду 3 кв. 2025 года.
Стоимость продажи - 5 592 067 200 рублей.













