Сдается коммерческая, 450 кв.м., 1/1 эт
Обзор№ - 15661
| Арендная плата (Помесячно) | 495 000 |
|---|---|
| Цена кв.м. в год | 0 |
| Тип здания | Административное здание |
| Планировка avito | Кабинетная, Открытая |
| Отделка помещения коммерческая | Офисная |
| Вход cian (avito) | Отдельный с улицы |
| Удаленность от дороги (авито) | Первая линия |
| Тип парковки | На улице |
| Дополнительно о парковке avito | Подходит для грузового транспорта |
| Тип аренды | Прямая |
| Залог | Есть |
| Залог (avito) | 1 месяц |
| Сумма залога, руб | 495000 |
| Арендные каникулы | Есть |
| Помещение занято | Нет |
| Тип Комиссия агента, %-руб | % |
| Способ связи avito | По телефону и в сообщениях |
| Торги | Нет |
| Тип коммерческой | Складское помещение |
| Площадь, кв.м. | 450 |
| Этаж | 1 |
| Этажность | 1 |
Адрес
| Страна | Россия |
|---|---|
| Регион страны | Московская область |
| Район | городской округ Люберцы |
| Населенный пункт | рабочий посёлок Томилино |
| Улица | улица Гаршина |
| Номер дома | 9Д/1с4 |
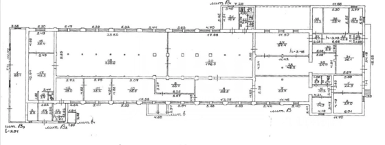
В избранное Аренда склада 450кв.м.
Объект № 15661
Сдается в аренду помещение под склад 450кв.м. отдельные ворота для разгрузки погрузки, пол бетон, высота потолка 4 метра, подведены все коммуникации отопление, вода, канализация, электрическая мощность 100кВт с возможностью увеличения Большая охраняемая парковочная зона, заезд по пропускам, возможность стоянки грузовых автомобилей. Окончательные условия при просмотре объекта и согласований договора.











