Сдается коммерческая, 7000 кв.м., 1/1 эт
Обзор№ - 16063
| Арендная плата (Помесячно) | 11 300 000 |
|---|---|
| Цена кв.м. в год | 0 |
| Тип здания | Административное здание |
| Планировка avito | Кабинетная, Открытая |
| Отделка помещения коммерческая | Офисная |
| Вход cian (avito) | Отдельный с улицы |
| Удаленность от дороги (авито) | Первая линия |
| Тип парковки | На улице |
| Дополнительно о парковке avito | Подходит для грузового транспорта |
| Кол-во парковочных мест | 200 |
| Тип аренды | Прямая |
| Залог | Есть |
| Залог (avito) | 1 месяц |
| Сумма залога, руб | 11300000 |
| Арендные каникулы | Есть |
| Помещение занято | Нет |
| Тип Комиссия агента, %-руб | % |
| Способ связи avito | По телефону и в сообщениях |
| Класс здания | A |
| Торги | Нет |
| Тип коммерческой | Складское помещение |
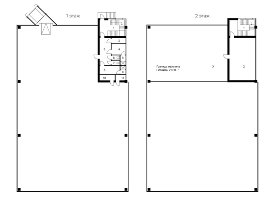
| Площадь, кв.м. | 7000 |
| Этаж | 1 |
| Этажность | 1 |
Адрес
| Страна | Россия |
|---|---|
| Регион страны | Московская область |
| Район | городской округ Домодедово |
| Населенный пункт | деревня Заболотье |
| Район города | индустриальный комплекс Парк Весна |
| Номер дома | с101 |
В избранное Склад 7000кв.м.
Объект № 16063
Склад новый введен в эксплуатацию в 2025 года первый этаж площадь 7000кв.м. доковые ворота для разгрузки погрузки, полы антипыль нагрузка на пол 6 тонн на кв.м., рабочая высота потолка 8 метров. Подведены все коммуникациии, отопление, вода, канализация, электрическая мочность по запросу. 18 км от МКАД по Симферопольскому шоссе. Шаг колонн: 12х24 м. автоматические секционные ворота Hrmann с герметизаторами и уравнительными платформами. Кросс-док. Инженерные коммуникации с запасом на развитие. Круглосуточный контрольно-пропускной режим.



















