Сдается коммерческая, 240 кв.м., 1/15 эт
Обзор№ - 16280
| Арендная плата (Помесячно) | 1 204 000 |
|---|---|
| Цена кв.м. в год | 0 |
| Тип здания | Бизнес-центр |
| Планировка avito | Открытая |
| Отделка помещения коммерческая | Чистовая |
| Вход cian (avito) | Отдельный с улицы |
| Тип парковки | На улице |
| Тип аренды | Прямая |
| Залог | Есть |
| Залог (avito) | 1 месяц |
| Сумма залога, руб | 2408000 |
| Тип Комиссия агента, %-руб | % |
| Способ связи avito | По телефону и в сообщениях |
| Торги | Нет |
| Тип коммерческой | Помещение свободного назначения |
| Площадь, кв.м. | 240 |
| Этаж | 1 |
| Этажность | 15 |
Адрес
| Страна | Россия |
|---|---|
| Регион страны | Москва |
| Район | Москва |
| Населенный пункт | Москва |
| Район города | Пресненский |
| Улица | переулок 1-й Земельный |
| Номер дома | 1 |
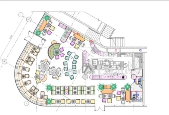
В избранное Аренда ресторана на 1905 года, 240,8 м2
Объект № 16280
Аренда помещения свободного назначения в БЦ по адресу ул. 1-й Земeльный пeреулок, 1.
Общая площадь - 240,8 м². Высота потолков: 6,2 метра. Электрическая мощность: 60 кВт. 1 этаж. Витрины. Отдельный выход. Отделка за выездом арендатора. Все современные инженерные коммуникации.
Стоимость аренды: 1 204 000 рублей в месяц (включая НДС и эксплуатационные расходы). Прямая аренда КДА на 11-ть месяцев (НДС).





















