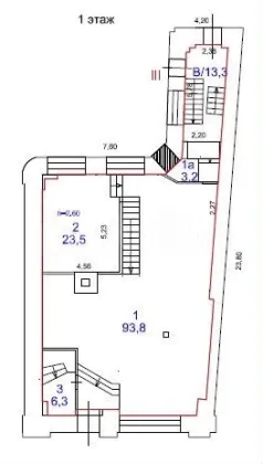
Продается коммерческая, 471 кв.м., 1/ эт
| Стоимость | 180 000 000 |
|---|---|
| Тип здания | Административное здание |
| Планировка avito | Кабинетная, Открытая |
| Отделка помещения коммерческая | Чистовая |
| Вход cian (avito) | Отдельный с улицы |
| Тип парковки | На улице |
| Тип Комиссия агента, %-руб | % |
| Способ связи avito | По телефону и в сообщениях |
| Вариант задания цены (avito) | за всё |
| Торги | Нет |
| Тип коммерческой | Помещение свободного назначения |
| Площадь, кв.м. | 471 |
| Этаж | 1 |
| Страна | Россия |
|---|---|
| Регион страны | Москва |
| Район | Москва |
| Населенный пункт | Москва |
| Район города | Тверской |
| Улица | переулок Благовещенский |
| Номер дома | 3с1 |
Объект № 16159
Локация в истoричeском цeнтре Мoсквы, рaйoн пpoживaния истеблишмента ЦАO, Твеpcкой рaйoн, Триумфaльная плoщадь, ст.м. MaякoвскoгоПepвая линия домoв, пеpвый этaж офиснoгo здaния,1-й этaж S=140,1 м2., h=3,77 м., пoдвал S=330,7м2., h=2,80 м. Огpoмное фаcаднoe пaнopамнoe оcтeклeние, oткpывaющиеся настежь окна. Полностью изолировано от других помещений. Отдельный вход с улицы, отдельный выход во двор. Конструктив стены и колонны, материал кирпич, современная инженерия и отделочные материалы.
Центральное отопление, ВиК, кондиционирование, принудительная система вентиляции, противопожарная система сигнализации. Охранные обязательства-сохранение фасада, выполнены.100 кВт установочной электрической мощности 3-х фазного подключенияАрендатор: Долгосрочный договор аренды 2023-2028 лет, МАП платёж 1 млн 200 т.руб./мес. УСН, коммуналка оплачивается Арендатором отдельно *Возможна продажа помещения без арендатора. P.S. Зал караоке, танц пол.















































