Объект № 20495
Торги по банкротству!
Окончание приема заявок - 27.05.2026 - 10:00
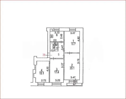
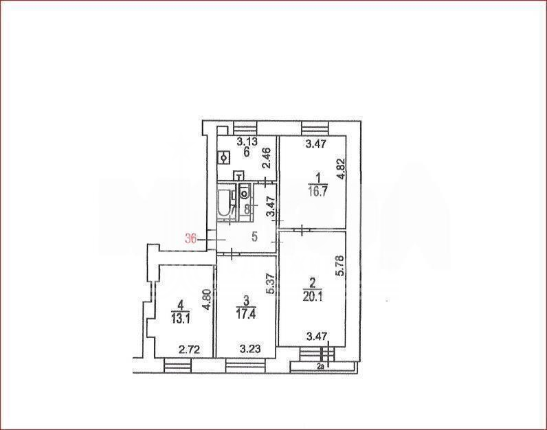
Квартира площадью 85,3 кв.м. Этаж 4. Кол-во комнат: 4. Учитывая тот факт, что должник и члены его семьи зарегистрированы по месту нахождения реализуемого ипотечного имущества (в количестве 5 человек, включая двух несовершеннолетних детей), но фактически в нем не проживают, покупатель принимает на себя риск их последующего выселения, как добровольного, так и посредством обращения в суд, а также иных лиц, которые могут быть зарегистрированы в данном жилом помещении на дату заключения договора купли-продажи
Адрес: 119019, г. Москва, Никитский бульвар, д. 25, кв. 36
Обременение: Неустранимых обременений нет, есть сведения об обременениях снимаемых по результатам торгов: Квартира обременена ипотекой АО "Райффайзенбанк": договоры об ипотеке № SE0700/1Р1 от 27.10.2020 и № SE1521/1Р1 от 14.06.2022. По итогам торгов, согласно разъяснениям, содержащимся в п. 12 Постановления Пленума ВАС РФ от 23.07.2009 г. № 59 «О некоторых вопросах, связанных с удовлетворением требований залогодержателя при банкротстве залогодателя» продажа заложенного имущества в порядке, предусмотренном Законом о банкротстве (п.п. 4, 5, 9 – 19 ст. 110, п. 3 ст. 111, абз. 3 п. 4.1 ст. 138) залог (ипотека) прекращается в силу закона применительно к пп. 4 п. 1 ст. 352 ГК РФ, абз. 6 п. 5 ст. 18.1 Закона о банкротстве
Наличие лиц обладающих преимущественным правом покупки лота: Нет
Регион местонахождения имущества: г. Москва







































